4
2
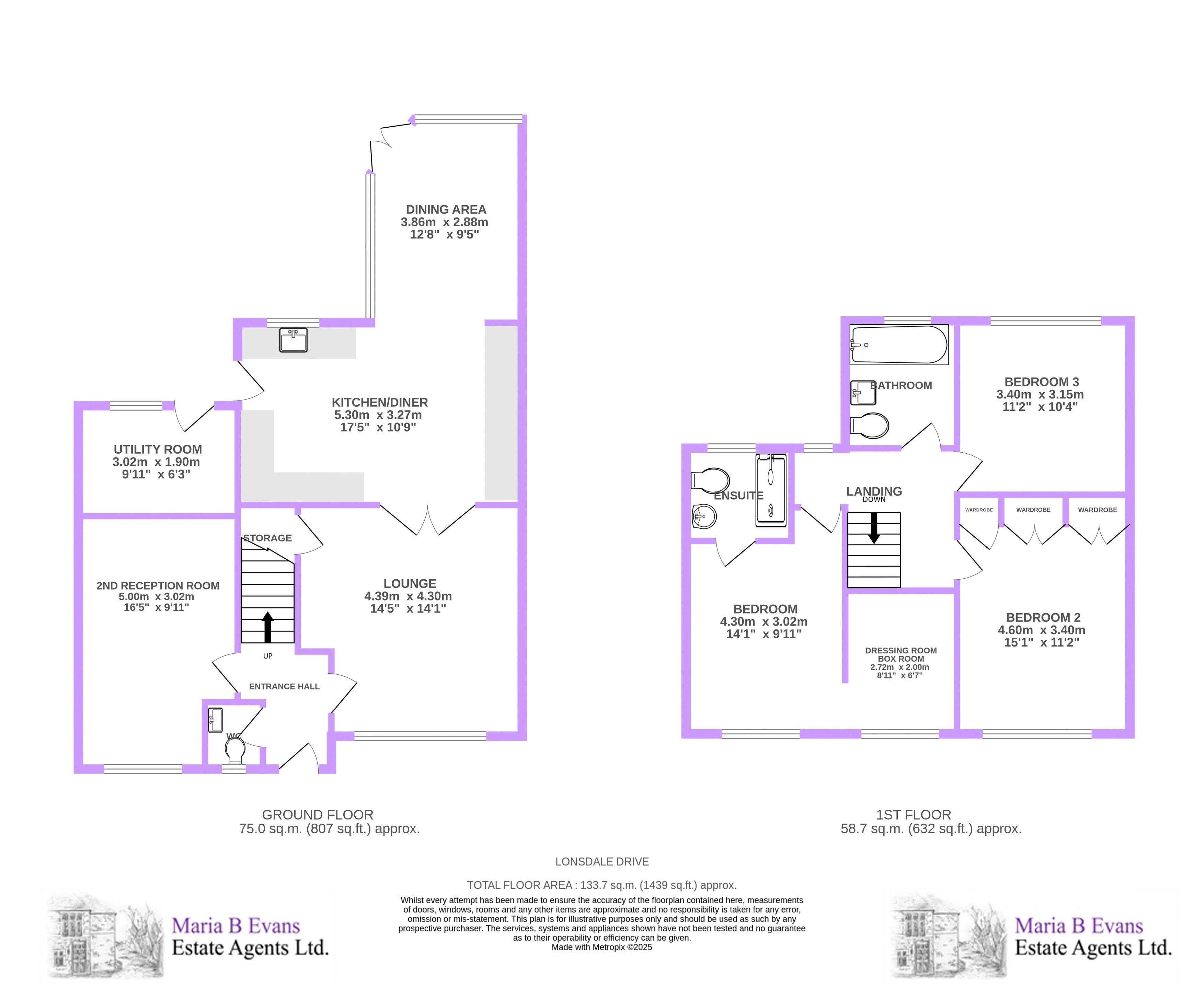
1 Superbly situated within easy reach of transport connections, sought-after schools, and a range of amenities, this well-appointed family home offers three spacious bedrooms, including a master suite complete with dressing room and en suite, and a family bathroom to the first floor. To the ground floor, two reception rooms, a stylish kitchen, dedicated dining room, and additional utility provide excellent accommodation. Externally, the property offers substantial off-road parking and a south-facing rear garden, both of which are of excellent proportions.
Welcome home…
First impressions are set from the inviting entrance hallway, finished with an oak laminate flooring that flows through into the main living spaces.
To the left of this, a two-piece suite is fitted with a wall-mounted wash hand basin and close coupled w.c., complemented by tiling to dado and an opaque window to the front. Adjacent, is the second reception room offers fantastic flexibility as a further bedroom, study or snug and is equipped with a television point to the side, window to the front and recess downlights above.
The main reception is a spacious, family room centred around a cosy log burner set upon a granite hearth and also with a window to the front, television point to the corner. An understairs storage cupboard can be accessed from this room whilst a set of oak, panelled double doors open into the kitchen.
The heart of the home…
At the heart of the home is the well-appointed kitchen, balancing contemporary finishes with traditional character, and holds an extensive range of ivory and blue wall and base units, complemented by oak worktops. These include a Rangemaster five ring dual fuel range cooker with extractor hood over, a Belfast porcelain sink unit with an etched drainer to the side and both mixer and hot water taps, an integrated dishwasher, refrigerator and freezer. A dresser-style unit creates a dedicated coffee station whilst the central island provides both storage and casual seating. A UPVC door to the side allows access to the sheltered, timber log store and into the utility room which is equipped with base units for further storage and counterspace, plumbing for an automatic washing machine, space for a tumble dryer and houses the boiler.
A broad opening gives way to the dining area, a welcoming, light-filled space with windows to two sides and patio doors opening out onto the rear garden: the perfect setting for family gatherings or entertaining guests.
We have drift off…
The landing offers access to all three bedrooms and the family bathrooms via panelled doors.
The master bedroom is a spacious double room situated to the front of the home with a picture window, alcove for a television opposite the bedspace and smooth flow through to dressing area. This has an extensive set of fitted open wardrobes and a front-facing window, offering the potential to be reconfigured as a nursery or box room. The master is serviced by a three-piece, charming en suite, finished with grey-stone effect ceramic tiled flooring and panelling to dado and comprises of walk-in shower with glazed panel to the side, pedestal wash hand basin and close coupled w.c.
Bedrooms two and three are both generously sized, double rooms. Bedroom two benefits from integral wardrobes across one wall, a television point and a window to the front whilst bedroom three has a window to rear and a television point.
The family bathroom holds a well-presented suite, tiled in natural tones and complemented by wood laminate flooring. It offers a modern suite including a panelled bath with glass screen and shower attachment over, pedestal wash hand basin and close coupled w.c.
Down the garden path…
The south-facing rear garden is divided into both patio flags and a lawn, bordered by sleeper edged shrubs and timber fences for privacy. A raised decking area to one end of the garden supports a charming summer house providing an inviting space to relax. The garden is complete with outdoor lighting and an external water tap. To the side of the property, a bin storage space and timber gate leads to the front where the driveway is finished in both Tarmacadam and gravel and framed with timber fencing whilst a neat hedge lines the front.
Viewing is strictly by appointment through Maria B Evans Estate Agents
We are reliably informed that the Tenure of the property is Freehold
The Local Authority is Chorley Borough Council
The EPC rating is C
The Council Tax Band is C
The property is served by mains drainage
Please note:
Room measurements given in these property details are approximate and are supplied as a guide only.
All land measurements are supplied by the Vendor and should be verified by the buyer's solicitor. We
would advise that all services, appliances and heating facilities be confirmed in working order by an
appropriately registered service company or surveyor on behalf of the buyer as Maria B. Evans Estate
Agency cannot be held responsible for any faults found. No responsibility can be accepted for any
expenses incurred by prospective purchasers.
Sales Office: 34 Town Road, Croston, PR26 9RB T: 01772 737888 Rentals T: 01257 462095
W: www.mariabevans.co.uk E: This email address is being protected from spambots. You need JavaScript enabled to view it. This email address is being protected from spambots. You need JavaScript enabled to view it.
Company No 8160611 Registered Office: 5a The Common, Parbold, Lancs WN8 7HA
Please complete the form below to request a viewing for this property. We will review your request and respond to you as soon as possible. Please add any additional notes or comments that we will need to know about your request.
| Name | Location | Type | Distance |
|---|---|---|---|
Sales: 01704 892001
sales@mariabevans.co.uk
rentals@mariabevans.co.uk