4
2
3
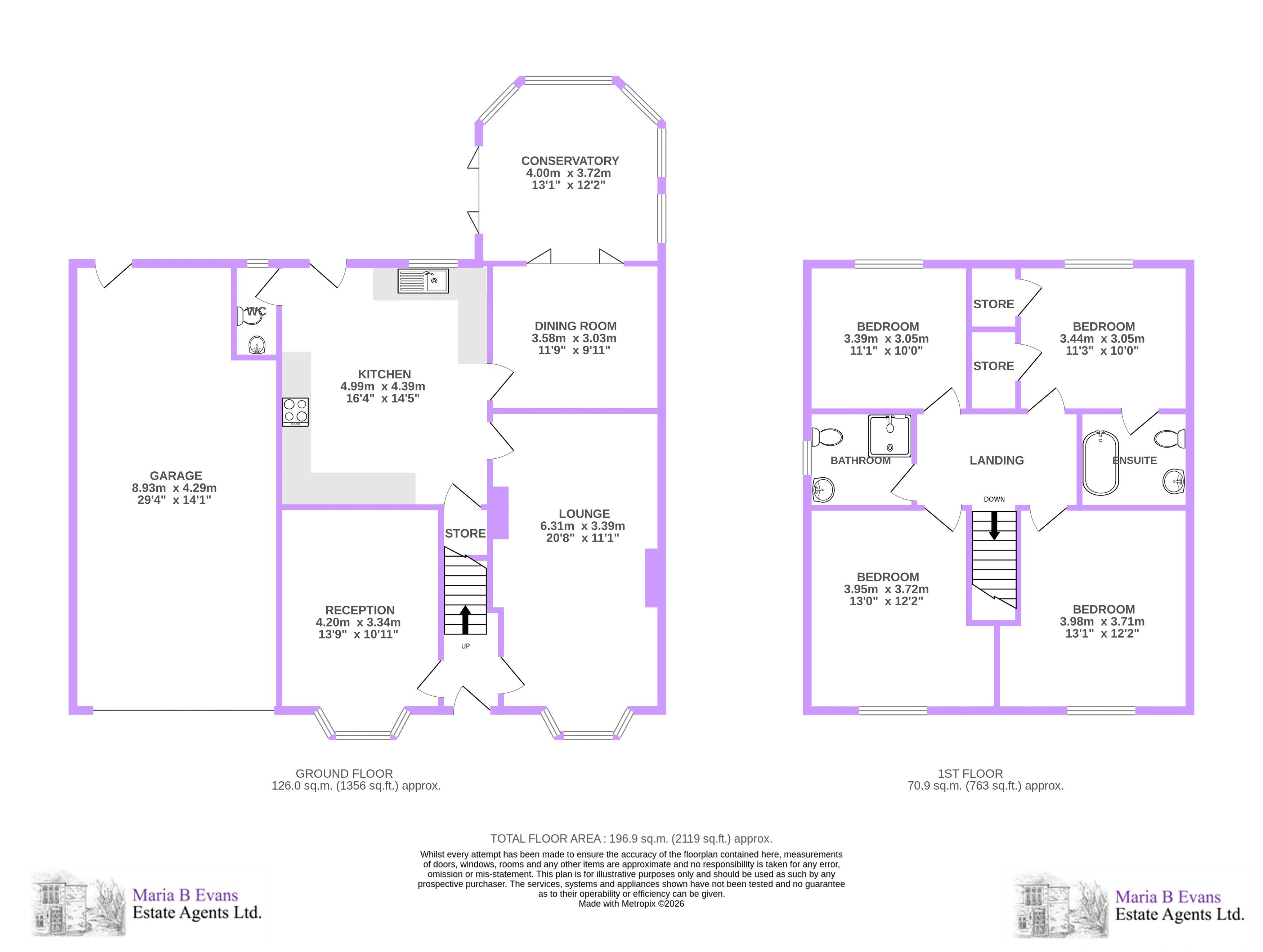
Beautifully maintained both internally and externally, this 1930s detached home offers period character with contemporary lifts throughout. Featuring two reception rooms (with log and multifuel burners), a Shaker-style kitchen, dining room, conservatory and w.c. to the ground floor, four generous bedrooms (the master with en suite and his-and-hers walk-in closets) and a three-piece shower room occupy the first floor. Set within a stunning 0.4 acre plot furnished with mature planting, a natural pond and visiting wildlife, this home enjoys a very peaceful and private setting.
A warm welcome…
Approached via an attractive frontage, black iron gates open onto a sweeping gravel driveway providing parking for up to six vehicles. A vibrant splash of greenery is created by the lawn to the side, beautifully bordered with mature shrubs and flowers including lavender, rose bushes and established trees, adding colour and definition to the setting. A stone wall runs along the front boundary, complemented by hedging to either side offering a welcome sense of privacy. The entrance door, featuring glazed insets, opens into the home where the well-considered layout immediately creates an inviting sense of flow. A staircase rises directly ahead to the first floor, while an mahogany panelled door to the left leads into the cosy snug.
This welcoming room features wood flooring, a bay window and a pendant light, combining to create a bright yet comforting space. A log burner set within a brick fireplace with stone hearth and oak mantel forms a charming focal point, complemented by a television point to the side and a mirrored inset feature.
The heart of the home…
From here, the layout continues into the heart of the home – a warm and inviting kitchen. Fitted with the classic Shaker style, soft grey wall and base units line the walls and are topped with black granite worktops, enhanced by subtle integrated under-cabinet lighting. A striking navy-blue central island provides breakfast bar seating and is finished with a complementary marble-effect quartz work surface. The focal point of the room is a traditional gas Aga set within a brick recess, with warm integrated lighting above creating a wonderful sense of character. Integrated appliances include a Neff oven and grill, four-point induction hob, under-counter refrigerator and freezer, and a one-and-a-half stainless-steel sink unit with etched drainer and Franke instant hot tap. There is also plumbing for an automatic washing machine and dishwasher.
A window overlooks the rear garden, while additional features include understairs storage and access to a ground floor cloakroom. The cloakroom comprises a wall-mounted wash hand basin, close-coupled w.c., chrome heated towel rail, mirrored wall-mounted vanity cabinet, opaque window and recessed downlighting.
All things bright and beautiful…
The main reception room is a bright and generously proportioned space, featuring a bay window to the front and an additional window to the side which together flood the room with natural light. Two pendant lights enhance the airy feel. A further focal point is provided by the multi-fuel burner set within a brick inset, complemented by a black Indian stone hearth and oak beam above. Doors from this room lead back to the hallway, while a second doorway returns to the kitchen, allowing for an easy and natural flow throughout the ground floor.
The dining area provides an excellent setting for both everyday meals and entertaining guests. Pine flooring continues underfoot, complemented by a central pendant light and decorative dado rail detailing to the walls.
From here, double doors with glazed insets open into the bright conservatory. The conservatory enjoys a tiled floor and is surrounded by windows that frame tranquil views across the beautifully maintained garden, creating a peaceful space in which to relax and enjoy the outlook beyond.
And so, to bed…
Rising to the first floor, a spacious landing provides access to all four generously sized bedrooms. The space is softly illuminated by wall lights and a central pendant, while a radiator ensures warmth and comfort.
The master bedroom is a well-proportioned space, featuring a window overlooking the rear garden and a central pendant light. The room benefits from his-and-hers walk-in wardrobes, each fitted with automatic lighting for convenience, and is served by a contemporary three-piece en suite, finished in marble-effect porcelain tiling. The suite comprises a freestanding bathtub, wall-mounted wash hand basin, traditional-style chrome heated towel rail, illuminated mirror and an opaque window.
The second and third bedrooms are both well-proportioned rooms, each enjoying windows to the front which are enhanced by attractive stained-glass insets to the upper panes. Plantation shutters provide both privacy and a stylish finish, while pendant lighting and radiators ensure the rooms are bright and comfortable.
The fourth and final bedroom is also a generous double, positioned to the rear of the property with a window overlooking the garden, radiator and pendant light.
These bedrooms are served by a fully tiled, three-piece shower room. This comprises a walk-in wet room style shower with monsoon head, additional hand shower and glazed screen to the side, along with a wall-mounted wash hand basin, close-coupled w.c. and a wall-mounted mirrored vanity unit. A chrome heated towel rail and recessed downlighting complete the space.
Cultivated with love…
The gardens at Liverpool Road are undoubtably one of its most captivating features. Set on a plot of 0.4 acres, this beautiful and immaculately maintained space is firstly laid with a stone-flagged patio, providing an ideal space for outdoor seating, while a further gravel area to the side of the property offers additional room for al fresco dining and relaxation. Thick hedging along the side and front boundaries enhances its privacy, creating a peaceful and sheltered place to unwind. The attached double garage can be accessed from the garden through a pedestrian door to the rear with electric up-and-over doors to the front. This is a highly practical space for storage and is equipped with power and light and houses the gas central heating combination boiler.
Beyond, a neatly kept lawn stretches out ahead, bordered on either side by well-stocked beds filled with seasonal planting. Rose bushes, a variety of mature trees, ferns and palm trees provide colour, texture and interest throughout the year, while also adding natural screening and privacy.
Stone flags continue through the garden, providing space for a greenhouse before transitioning into stepping stones that guide you further into the grounds. At one point, they lead to a useful storage shed, discreetly enclosed with fencing and ideal for housing garden equipment.
The flower beds gently meander towards the centre and rear of the garden before returning to the borders, cleverly creating sections within the landscape. Towards the far end, the energy of the garden softens as it meets the stillness of a natural pond, peacefully bordered by woodland and, once again, providing a charming space to sit and enjoy the south-west facing orientation. A summerhouse sits beside the water, providing additional storage while also enhancing the idyllic setting. A true haven for wildlife, the garden frequently welcomes visits from pheasants, squirrels and even deer.
On your doorstep…
This property enjoys a charming location opposite Rufford Old Hall with a selection of great village amenities being close to Burscough, Ormskirk, Tarleton and Croston where a wide selection of shops, supermarkets, cafés, restaurants and schools await. Rail services from Rufford railway station provide connections to Preston (Northbound) and Ormskirk (Southbound) which then connect to the wider cities. Edge Hill University and the coastal town of Southport are also just a short drive away, making the location both peaceful and well connected.
Viewing is strictly by appointment through Maria B Evans Estate Agents
We are reliably informed that the Tenure of the property is Freehold
The Local Authority is West Lancashire Borough Council
The EPC rating is C
The Council Tax Band is E
The property is served by mains drainage
Please note:
Room measurements given in these property details are approximate and are supplied as a guide only.
All land measurements are supplied by the Vendor and should be verified by the buyer's solicitor. We
would advise that all services, appliances and heating facilities be confirmed in working order by an
appropriately registered service company or surveyor on behalf of the buyer as Maria B. Evans Estate
Agency cannot be held responsible for any faults found. No responsibility can be accepted for any
expenses incurred by prospective purchasers.
Sales Office: 34 Town Road, Croston, PR26 9RB T: 01772 737888 Rentals T: 01257 462095
W: www.mariabevans.co.uk E: This email address is being protected from spambots. You need JavaScript enabled to view it. This email address is being protected from spambots. You need JavaScript enabled to view it.
Company No 8160611 Registered Office: 5a The Common, Parbold, Lancs WN8 7HA
Please complete the form below to request a viewing for this property. We will review your request and respond to you as soon as possible. Please add any additional notes or comments that we will need to know about your request.
| Name | Location | Type | Distance |
|---|---|---|---|
Sales: 01704 892001
sales@mariabevans.co.uk
rentals@mariabevans.co.uk