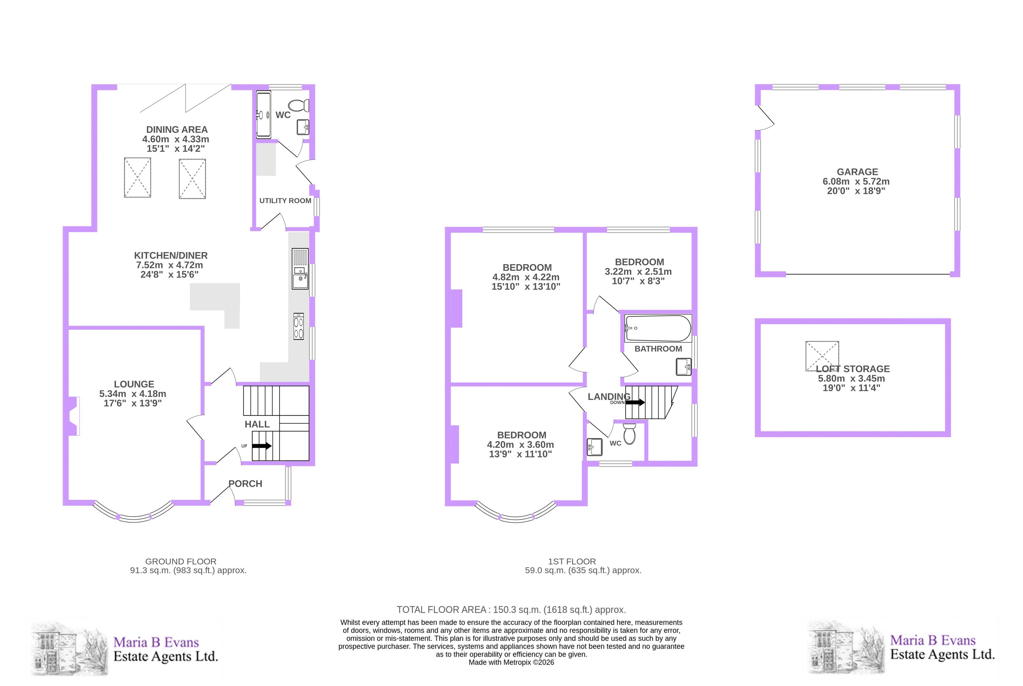
This charming semi-detached family home is impeccably presented throughout, offering generously proportioned accommodation that is both practical and beautifully appointed. Blending its original 1930’s features with contemporary style, the home enjoys a highly desirable layout with a superb open-plan living-dining-kitchen space, (enhanced by bi-folding doors to the rear garden), a separate reception room, utility and ground floor shower room, whilst upstairs, three bedrooms are complemented by a three-piece bathroom and a separate two-piece w.c. The loft has also been partially converted, inviting the exciting idea for more space. Externally, the property continues to impress with a shale driveway offering parking for 3-4 cars to the front and a good-sized garden with detached double garage to the rear.
Welcome home…
The entrance vestibule is accessed via a door with a glazed inset and is surrounded by windows, allowing for an abundance of natural light. Finished with tiled flooring, it creates a bright and welcoming first impression, while providing a practical space for guests to remove coats and shoes before entering the main home.
An oak door opens into the hallway, where the same flooring is continued. To one corner, a thoughtfully designed ‘boot room’ area has been fitted with full-height storage units incorporating an integrated bench seat, making excellent use of the space. An opaque inset window allows natural light to filter from the side, and the space is warmed by electric underfloor heating.
Space to unwind…
The elegant reception room has a charming bow window to the front elevation, filling the space with natural light. An inset log burner with a tiled surround forms an attractive focal point, complemented by a discreet television point to the corner. The room benefits from electric underfloor heating, further enhanced by a contemporary vertical column radiator, creating a wonderfully warm and inviting atmosphere. Finished with a central pendant light, this is a cosy yet refined retreat.
Open plan living…
To the rear, the property opens into an impressive open-plan living space, creating a wonderful sense of flow that is ideal for both family life and entertaining. The thoughtful layout enhances the feeling of space, while tiled LVT flooring with underfloor heating runs throughout, complemented by recessed downlights and an integrated Sonos speaker system.
The kitchen is fitted with a comprehensive range of sleek white wall and base units, topped with white quartz work surfaces that extend to the splashback and upstands. A range of integrated Siemens appliances include a refrigerator, freezer and dishwasher, along with a one-and-a-half inset sink unit. A four-point induction hob with extractor and spotlighting above completes the cooking area.
A central island offers additional storage and an L-shaped breakfast bar, creating an interactive hub for cooking and socialising, further enhanced by a built-in wine chiller. Two side windows draw in the natural light, while the dining area sits opposite with a convenient television point.
The living area is illuminated by Velux windows overhead and expansive bi-folding doors stretching across the rear elevation, allowing for effortless indoor-outdoor living. A further television point completes this superb, sociable space.
The practical stuff…
Adjacent to the kitchen, the utility room is fitted with complementary cabinetry, providing plumbing for an automatic washing machine and venting for a tumble dryer. There is ample additional storage, an extractor fan, and a side door with an opaque glazed inset. The flooring transitions into a stylish concrete-effect tile, which continues seamlessly into the adjoining shower room. Fully tiled for a sleek, contemporary finish, the shower room comprises a modern three-piece suite including a double walk-in shower with glazed sliding doors, a waterfall-style shower head with additional handheld attachment, a vanity wash hand basin, and a close-coupled w.c. An extractor fan, opaque window and spotlights complete this well-appointed space.
Sweet dreams…
Rising to the first floor, the staircase benefits from a stained-glass inset creating a striking and colourful feature. White painted panelled doors provide access to all rooms.
The principal bedroom is a stylish and tranquil retreat, generously proportioned and enjoying a window to the rear that captures far-reaching views. Fitted wardrobes are neatly positioned into one corner with a vanity unit to another, ensuring the space is both practical and well arranged. A television point sits opposite the bed space, while a cast iron fireplace with tiled hearth and white painted mantel forms a charming focal point.
Bedroom two is another spacious double room, featuring a bow window to the front elevation. Three double wardrobes span one wall in a sleek white gloss finish, and the room is illuminated by a central pendant light.
The third bedroom is a well-proportioned single, with a rear-facing window and pendant lighting.
These bedrooms are served by a well-appointed family bathroom finished with dark tiled flooring and fully tiled walls in a complementary lighter neutral tone. The suite comprises a bathtub, wall-mounted wash hand basin, wall-mounted vanity cabinet, chrome heated towel rail and recessed downlights, with an opaque window providing natural light.
A separate cloakroom offers additional convenience, fitted with a vanity wash hand basin and close-coupled w.c., with tiling to the splashback areas. This space is enhanced by a distinctive diamond-shaped opaque inset window and spotlight above.
A room is a room until…
The loft has been partially converted, providing a versatile additional space ideal for children’s play or hobbies. Accessed by a loft ladder, the space benefits from a Velux window and a further window to the front, along with power and lighting. Useful eaves storage is also available.
Garden delights…
The rear garden mirrors the quality and style found within the home, having been thoughtfully arranged with entertaining and family enjoyment in mind. Immediately adjoining the property is an Indian stone patio, creating space for al fresco dining, complemented by a water tap and a brick-built boundary wall to the side that enhances privacy.
A tarmacadam driveway extends from double timber gates at the side through to the rear, providing additional practicality. Alongside sits a well-kept lawn, together with a wood-chipped area ideal for children’s play.
Positioned at the rear of the plot is a detached brick-built double garage, fitted with an electric shutter door, power and lighting, and incorporating an inspection chamber for car enthusiasts. External lighting is mounted to the garage and there is useful storage space behind. Adjacent to this is a further Indian stone patio offering another delightful seating area perfectly placed to capture the sun throughout the day while enjoying open fields to the rear.
To the front, the property enjoys a smart and attractive approach. A shale driveway provides off-road parking for three to four vehicles, while barked beds planted with mature shrubs and bushes add colour and interest. An attractive stone wall fronts the property, with timber fencing to the sides completing the setting.
Viewing is strictly by appointment through Maria B Evans Estate Agents
We are reliably informed that the Tenure of the property is Freehold
The Local Authority is West Lancashire Borough Council
The EPC rating is TBC
The Council Tax Band is D
The property is served by mains drainage
Please note:
Room measurements given in these property details are approximate and are supplied as a guide only.
All land measurements are supplied by the Vendor and should be verified by the buyer's solicitor. We
would advise that all services, appliances and heating facilities be confirmed in working order by an
appropriately registered service company or surveyor on behalf of the buyer as Maria B. Evans Estate
Agency cannot be held responsible for any faults found. No responsibility can be accepted for any
expenses incurred by prospective purchasers.
Sales Office: 34 Town Road, Croston, PR26 9RB T: 01772 737888 Rentals T: 01257 462095
W: www.mariabevans.co.uk E: This email address is being protected from spambots. You need JavaScript enabled to view it. This email address is being protected from spambots. You need JavaScript enabled to view it.
Company No 8160611 Registered Office: 5a The Common, Parbold, Lancs WN8 7HA
Please complete the form below to request a viewing for this property. We will review your request and respond to you as soon as possible. Please add any additional notes or comments that we will need to know about your request.
| Name | Location | Type | Distance |
|---|---|---|---|
Sales: 01704 892001
sales@mariabevans.co.uk
rentals@mariabevans.co.uk