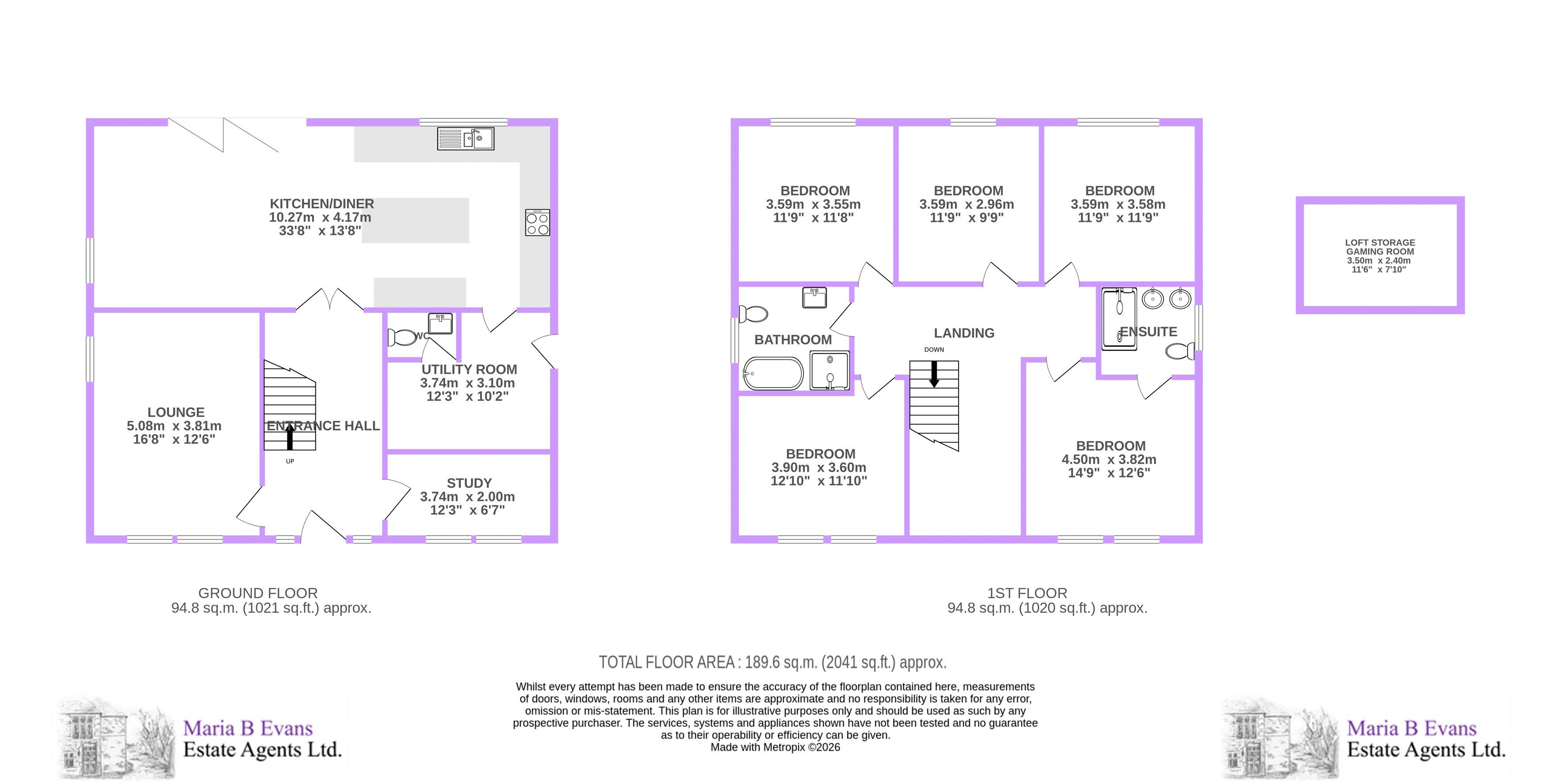
Welcome to No. 7 Hunters Fold Way, a beautifully finished, five-bedroom home set within a peaceful, semi-rural location that enjoys close connections to village amenities. Designed with timeless elegance in mind and finished to an exceptional standard throughout, the property offers stylish, light-filled living spaces, including an impressive open-plan kitchen–living area with adjacent utility, boot room and w.c., a spacious reception with media wall, well-appointed home office and five beautifully-appointed bedrooms (the master with en suite) and a stunning four-piece family bathroom. To the rear, a landscaped garden enjoys far-reaching, rural views, whilst the front provides parking for four vehicles.
First impressions that count…
Constructed in an attractive light stone, the property presents a beautifully balanced, symmetrical façade, complemented by a timber overhang sheltering the entrance door which features glazed, opaque insets and a central knocker. A Cotswold gravel pathway, bordered by newly planted laurel hedging, leads to the front door whilst shale areas to either side provide parking for up to four vehicles, with two additional spaces available to the side of the property. This striking first impression offers a glimpse into the exceptional quality and style found throughout the home.
The impressive entrance hallway is flooded with natural light and laid with a Karndean herringbone flooring which flows seamlessly throughout the hallway and across the rest of the ground floor accomodation and is warmed by underfloor heating. Above, the elevated ceiling has wiring for a statement drop pendant, offering the opportunity to create a wonderful standout feature, perfectly complemented by elegant wall panelling around.
To the right, the home office unfolds through a door with glazed inset. Bespoke cabinetry in a rich, dark brown lines the walls, incorporating a generous desk with storage to either side and shelving above. A set of double doors, finished with T-bar knurled brass handles, open to additional storage and shelving, with the CCTV system neatly housed here. Two windows overlook the front aspect and are fitted with plantation shutters, while recessed downlights provide further illumination.
Opposite, the principal reception room offers a wonderfully spacious setting for relaxation with two front-facing windows fitted with plantation shutters, a glazed side panel and a central pendant light that enhances the sense of brightness. Decorative wall panelling adds texture and interest, while the media wall forms the focal point, designed with an inset for a 65-inch television and surrounding shelving.
Wine and dine…
Double doors with glazed insets open into the magnificent kitchen–living space at the rear of the home, where the eye is immediately drawn to the views of the rear garden and the rolling green fields beyond, perfectly framed by bi-folding doors.
The beautifully appointed bespoke kitchen is fitted with porcelain-coloured wall and base units, topped with quartz worktops, upstands and splashbacks. A comprehensive range of integrated appliances includes two Hotpoint double ovens and grill, two combination microwaves, a five-point induction hob with concealed extractor above, a full-height refrigerator, a full-height freezer and a dishwasher.
Additionally, a porcelain twin sink with swan-neck tap is positioned beneath a window overlooking the rear garden. At the centre of the room, a generous island creates a natural gathering point, complete with breakfast bar seating whilst a thoughtful touch of a cleverly designed recess within the cabinetry provides a neat and discreet space for a dog bed and completes the kitchen area.
Recessed downlights illuminate the space and flow seamlessly into the adjoining living area, which could equally serve as a dining space. Here, an inset media point provides space for a television, with a wall-mounted cabinet beneath, shelving to one side and a glazed panel that invites further natural light into this superb open-plan setting.
Continuing from the kitchen is a spacious utility and boot room. An external door to the side, featuring an opaque glazed inset, provides convenient access, while opposite there are coat hooks and space to remove and store shoes. Base units line one wall, incorporating plumbing for an automatic washing machine, venting for a tumble dryer and an inset sink unit above, with additional storage units fitted around the room to maximise functionality.
From here, access is provided to the ground floor cloakroom, fitted with a back-to-wall w.c. and a wall-mounted wash hand basin, illuminated by a spotlight and served by an extractor fan.
Where elegance comes to rest…
Ascending to the first floor, the galleried landing overlooks the entrance hall below. Fitted with a traditional-style radiator, it provides access to all five beautifully presented bedrooms and the well-appointed four-piece family bathroom.
The principal bedroom forms an opulent and beautifully proportioned suite, finished in soft, calming tones. Decorative panelling frames the bed space, with two elegant drop pendant wall lights to either side, creating the opportunity for a striking yet serene focal point. A window to the front, fitted with plantation-style shutters, allows natural light to filter gently into the room, while a traditional-style radiator sits beneath and recessed downlights provide further illumination.
A door leads through to the stylish en suite, where neutral tiling extends across the floor and into the wet room–style shower, complete with a monsoon shower head, additional hand shower and glazed screen. Twin wall-mounted wash hand basins sit above floating cabinetry, offering practical storage while maintaining a clean, contemporary aesthetic. A back-to-wall w.c. and an opaque window complete this refined and well-appointed space.
The second bedroom is a generously proportioned room with two windows overlooking the front aspect, each fitted with plantation shutters for added privacy- a feature shared by all bedrooms. Two double fitted wardrobes with T-bar knurled handles provide excellent storage, while a traditional-style radiator and recessed downlights complete the space.
Bedrooms three and four are both spacious rooms enjoying views over the rear garden. Each is fitted with plantation shutters, traditional-style radiators and recessed downlighting, with bedroom three also benefiting from two double fitted wardrobes.
The fifth bedroom is currently arranged as a dressing room, ideally positioned opposite the principal suite, though it offers ample proportions to serve equally well as yet another good-sized bedroom. Fitted wardrobes span an entire wall, with space for a vanity area and additional furnishings. A rear-facing window and recessed downlights complete an exceptional dressing room.
Bathroom bliss…
The exquisite family bathroom is beautifully appointed in soft, neutral tones, creating a serene, spa-inspired sanctuary. Tiling extends across the floor and continues into the walk-in, wet room–style shower, which features a monsoon shower head, an additional hand shower and glazed screen, adjacent to a freestanding bath. Opposite, a wall-mounted vanity unit with wash hand basin is set beneath a mirror, framed by two wall light and a close-coupled w.c. completes the suite. An opaque window allows natural light to gently illuminate the space while maintaining privacy, complemented by recessed downlights above and the comfort of underfloor heating.
Room for more…
Accessed from a ladder, the loft has been converted into a games room space with laminate wood- effect flooring, a television point, power and light.
A canvas of green…
Immediately outside, a Cotswold gravel terrace creates an inviting space for outdoor seating and entertaining. This continues along both sides of the property, where electric double gates to one side provide convenient vehicular access and additional parking, while the other side features an electric pedestrian gate leading to the front. There are two water taps servicing the garden, the first at the rear of the property which delivers both hot and cold water, and the second to the side which is cold water only.
Beyond the terrace, a well-kept lawn stretches away from the house, bordered by timber fencing and newly planted hedging that will mature to provide added greenery and privacy. At the far end, a low timber post-and-rail fence frames the boundary, perfectly drawing the eye towards the uninterrupted views of the rolling countryside beyond. The garden also benefits from external lighting around the property to allow the space to be enjoyed from day into evening and is equipped with electric sockets. To the side, an open-fronted timber barn provides practical storage for garden equipment and refuse bins, completing this beautifully considered outdoor setting.
The surrounding area…
No. 7 Hunters Fold Way enjoys a delightful semi-rural setting that is surrounded by open countryside yet still remains close to everyday village amenities. The market town of Chorley is just a short drive away whilst Heskin Hall Shopping Village is within easy reach home to boutique shops, artisan food outlets and cafés in a charming historic setting. Nearby, the former Camelot site continues to host a variety of seasonal events and attractions, providing additional leisure opportunities close to home.
A superb family location with well-regarded schools nearby, including Christ Church Charnock Richard CofE Primary School and Heskin Pemberton's Church of England VA Primary School, with secondary options of Parklands High School and Holy Cross Catholic High School. Excellent transport links are also close at hand, with easy access to the M6 and M61 motorways, while rail services from Euxton Balshaw Lane and Chorley provide straightforward access across the North West, linking to Preston, Manchester, Bolton and beyond.
NB: the development will be maintained under a committee of nine residents
The property has planning permission approved for the construction of a single garage
Viewing is strictly by appointment through Maria B Evans Estate Agents
We are reliably informed that the Tenure of the property is Freehold
The Local Authority is West Lancashire Borough Council
The EPC rating is D
The Council Tax Band is F
The property is served by mains drainage
Please note:
Room measurements given in these property details are approximate and are supplied as a guide only.
All land measurements are supplied by the Vendor and should be verified by the buyer's solicitor. We
would advise that all services, appliances and heating facilities be confirmed in working order by an
appropriately registered service company or surveyor on behalf of the buyer as Maria B. Evans Estate
Agency cannot be held responsible for any faults found. No responsibility can be accepted for any
expenses incurred by prospective purchasers.
Sales Office: 34 Town Road, Croston, PR26 9RB T: 01772 737888 Rentals T: 01257 462095
W: www.mariabevans.co.uk E: This email address is being protected from spambots. You need JavaScript enabled to view it. This email address is being protected from spambots. You need JavaScript enabled to view it.
Company No 8160611 Registered Office: 5a The Common, Parbold, Lancs WN8 7HA
Please complete the form below to request a viewing for this property. We will review your request and respond to you as soon as possible. Please add any additional notes or comments that we will need to know about your request.
Sales: 01704 892001
sales@mariabevans.co.uk
rentals@mariabevans.co.uk