4
2
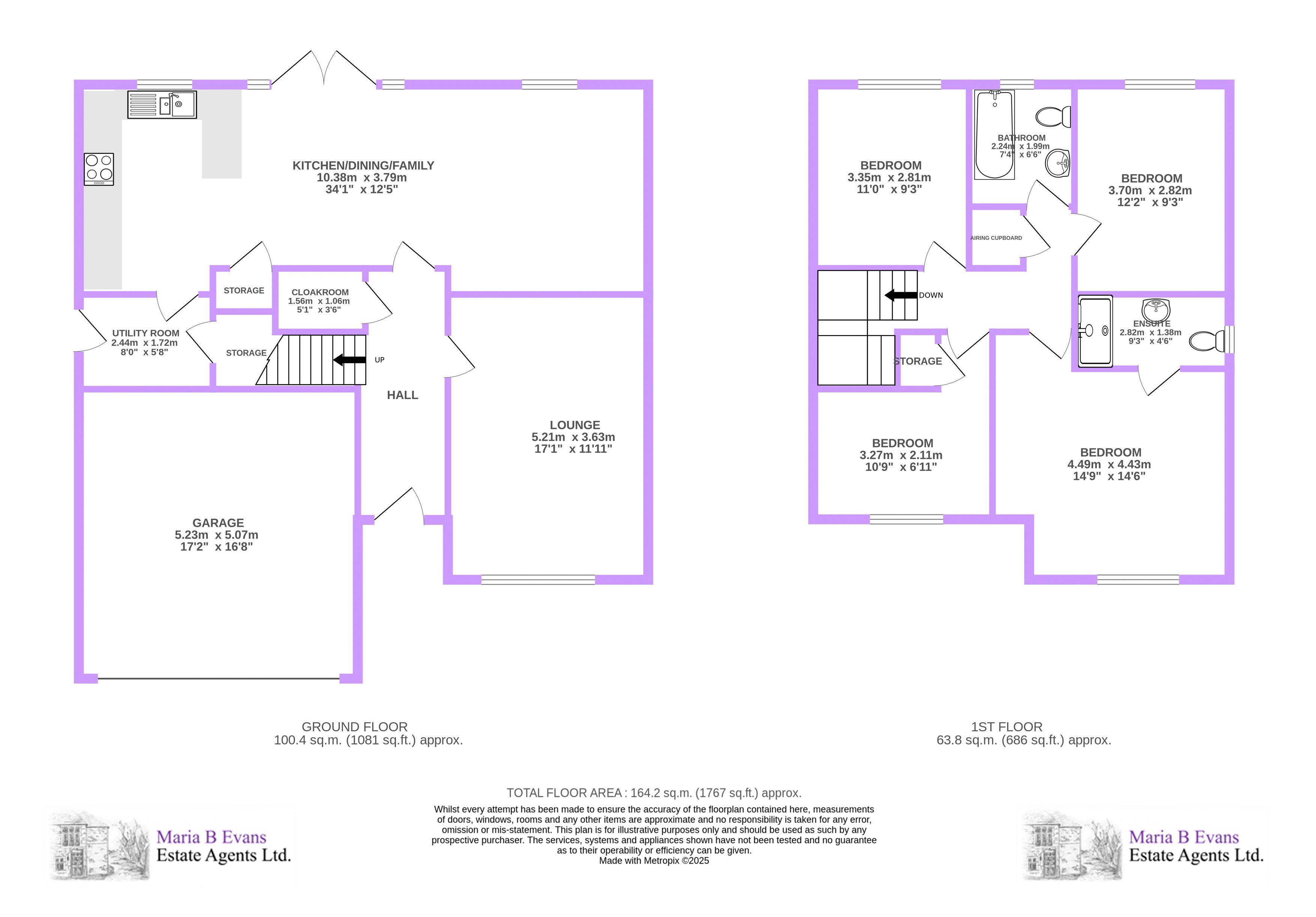
2 This well-presented home on Penwortham Avenue offers space for all with a layout that is ideally suited to modern family living having an open-plan layout across the rear, flowing easily to the garden, encouraging relaxed evenings and weekend play. This is supplemented by a separate reception room with media wall, two-piece w.c. and utility room. Upstairs, four good-sized bedrooms include a master with en suite, alongside a three-piece bathroom. With parking for two vehicles and an electric charging point, this home delivers comfort and convenience in a location with strong links to local schools and amenities.
A warm welcome…
Stepping over the threshold, the entrance hallway provides a warm welcome into the home. Laid with an Amtico flooring (which flows throughout the majority of the house) and lit by a pendant light, this provides a spacious area for greeting guests and removing shoes and coats.
To the left, there is access to the integrated double garage, which is equipped with electric up-and-over doors, power and light.
The reception unfolds as an inviting space with ample room for furnishing, centred around the media wall. This is completed with an electric living flame facility which elevates the cosy atmosphere, has an inset television point above and shelving to either side completed with integrated lighting.
Where the living happens…
Across the rear of the property, the open-plan living-dining-kitchen provides a versatile space for family to gather. The kitchen is fitted with white wall and base units which are topped with a laminate counter and upstand finished in a granite effect. Within the units, there are various integrated AEG appliances, including a double oven and grill, dishwasher, refrigerator, freezer and ceramic hob with extractor fan above. A window to the rear offers garden views, in front of which a one-and-a-half stainless steel sink unit is positioned, complete with an extendable tap and etched drainer to the side.
The countertops extend to offer breakfast bar seating for more informal meals, whilst space between the kitchen and living area can be utilized for a dining table. From here, bi-folding doors open out to the rear garden, bridging the outside with the in.
Finishing this area, the living space is equipped with a television point, patio doors to the rear garden and also has space for a log burner to the corner which can sit atop of a shelf with log storage beneath.
The practical stuff…
The utility is equipped with a range of kitchen complementary units which include plumbing for an automatic washing machine and venting for a tumble dryer. An external door leads to the side of the property, whilst another internal door leads to understairs storage.
The ground floor accommodation is completed with a two-piece w.c., comprising of a close coupled w.c. and a wall mounted wash hand basin.
Rest assured…
Ascending to the first floor, the landing grants access to all four bedrooms and also has a storage cupboard holding the water tank.
The master bedroom is a good-sized room with fitted wardrobes across one wall with mirrored frontages, a window to the front of the property and television point to one side. This room also enjoys a three-piece en suite comprising of a double shower enclosed by glazed sliding doors, a wall mounted wash hand basin, close coupled w.c., chrome heated towel rail and mirrored vanity cabinet. This is also laid with amtico flooring and has an opaque window to the rear.
The second and third bedrooms are both double rooms with a window overlooking the rear and illuminated by a pendant light above.
The fourth bedroom has space for a single bed and an integrated cupboard for storage.
Soaking it all up…
The family bathroom is equipped with a bathtub with shower head over and glazed panel to the side, whilst tiling in a soft, neutral tone creates a backsplash behind. Additionally, the suite holds a wall mounted wash hand basin, close coupled w.c., chrome heated towel rail and vanity cabinet.
The garden spot…
Laid majority to lawn, the garden features flagged areas providing space for seating and pathways down the side of the property, leading to the front through a timber gate. To the rear corner, a decking area creates a further space for soaking up the sun.
Viewing is strictly by appointment through Maria B Evans Estate Agents
We are reliably informed that the Tenure of the property is Freehold
We are reliably informed that the service charge for this property is £150 PA
The Local Authority is West Lancashire Borough Council
The EPC rating is B
The Council Tax Band is E
The property is served by mains drainage
Please note:
Room measurements given in these property details are approximate and are supplied as a guide only.
All land measurements are supplied by the Vendor and should be verified by the buyer's solicitor. We
would advise that all services, appliances and heating facilities be confirmed in working order by an
appropriately registered service company or surveyor on behalf of the buyer as Maria B. Evans Estate
Agency cannot be held responsible for any faults found. No responsibility can be accepted for any
expenses incurred by prospective purchasers.
Sales Office: 34 Town Road, Croston, PR26 9RB T: 01772 737888 Rentals T: 01257 462095
W: www.mariabevans.co.uk E: This email address is being protected from spambots. You need JavaScript enabled to view it. This email address is being protected from spambots. You need JavaScript enabled to view it.
Company No 8160611 Registered Office: 5a The Common, Parbold, Lancs WN8 7HA
Please complete the form below to request a viewing for this property. We will review your request and respond to you as soon as possible. Please add any additional notes or comments that we will need to know about your request.
| Name | Location | Type | Distance |
|---|---|---|---|
Sales: 01704 892001
sales@mariabevans.co.uk
rentals@mariabevans.co.uk