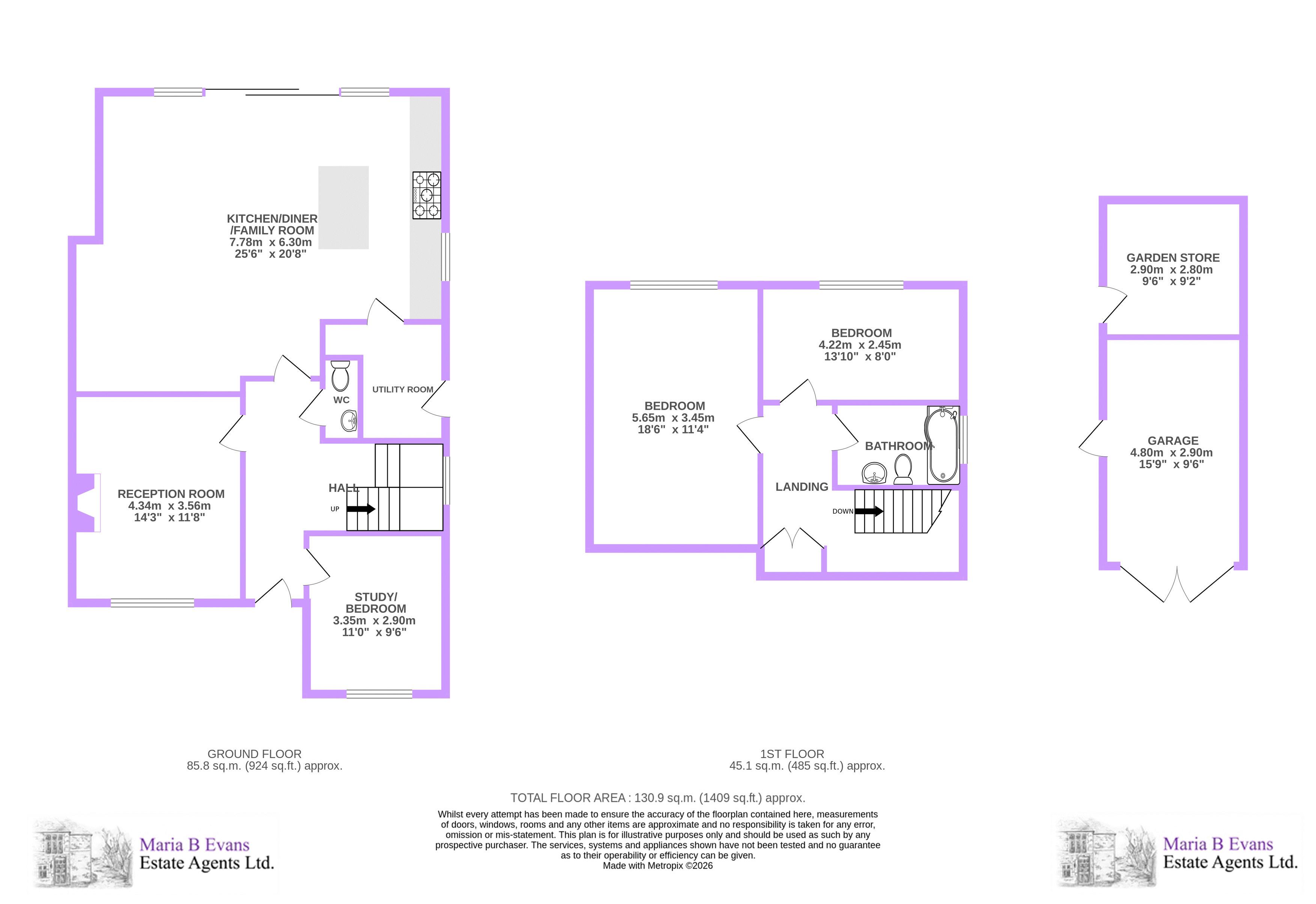
This well-presented chalet bungalow in Hilldale offers light-filled, spacious accommodation to include a welcoming hallway with oak flooring, a cosy reception room with multifuel burner and an impressive open-plan living, dining and kitchen to the rear, complete with central island, utility room and bi-folding doors to the garden. Upstairs are two generous double bedrooms and a contemporary family bathroom whilst, externally, the property enjoys ample parking, a tandem garage, and a well-maintained rear garden with patio and decked seating areas. All complemented by an ideal location close to village amenities, excellent schools, transport links and countryside walks.
Welcome home…
The property enjoys a neat approach, with a paved and shale driveway to the side providing ample parking for multiple vehicles. A paved pathway leads to the front door and is framed by a lawned area with mature shrubs and planting, whilst a timber fence to one side and a low brick wall to the front adds definition and privacy.
Upon entering, a spacious and welcoming entrance hallway provides access to the main accommodation. The hallway is laid with oak flooring, which continues throughout the home, and benefits from a useful understairs storage cupboard and radiator.
A convenient two-piece cloakroom is accessed from the hallway, featuring a close-coupled w.c. and a wall-mounted wash hand basin. The space is enhanced by an extractor fan and stylish panelling.
Comfort and charm…
To the right, a versatile front-facing room is currently arranged as a study but would equally suit use as a third bedroom, featuring a window to the front aspect, pendant lighting and a radiator.
Also located to the front of the property, the cosy reception room is centred around an attractive multifuel burner set on a slate hearth with an oak mantel above, creating a welcoming focal point. Whilst retaining an inviting feel, the room offers generous proportions and benefits from a front-facing window, pendant lighting and a television point, making it an ideal space for relaxation.
Open-plan living…
The property opens into an impressive open-plan living, dining and kitchen space, creating the perfect setting for modern family life, entertaining and social gatherings. This expansive area is finished with the same flooring as the entrance hallway, providing a seamless and cohesive feel throughout, and is illuminated by recessed downlighting. The kitchen is well appointed with a range of cream wall and base units, complemented by neutral brown quartz countertops. Integrated appliances include a one-and-a-half bowl inset sink with etched drainer, dishwasher, Lamona double oven and grill, and a five-burner gas hob with extractor hood above, while additional space is provided for a freestanding fridge/freezer. An oak-panelled door from the kitchen leads into the utility room, which provides additional storage along with plumbing for an automatic washing machine and housing for the boiler. The room is finished with a tiled floor, pendant lighting, and benefits from an external door opening to the side of the property, offering practical everyday convenience.
A central island forms an attractive focal point, featuring a wooden worktop that provides breakfast bar seating for casual dining, along with useful additional storage.
The space flows naturally into the living area, which benefits from a television point, and an adjacent dining area highlighted by a pendant light. The room is flooded with natural light via a side-facing window and bi-folding doors that open directly onto the rear garden, enhancing the sense of space and indoor-outdoor living.
Soak and sleep…
Stairs rise to a bright first-floor landing, featuring a useful storage cupboard and providing access to two well-proportioned bedrooms, all served by the family bathroom.
The principal bedroom is a generously sized room, enhanced by an extensive range of white fitted wardrobes to either side, incorporating additional drawer units. The space also benefits from a fitted vanity with drawers to either side, a television point, pendant lighting, and a large rear-facing window that allows for an abundance of natural light.
The second bedroom is a well-proportioned double room, featuring a rear-facing window and pendant lighting.
The family bathroom is fitted with a modern three-piece suite, comprising a P-shaped bath with a shower over, additional hand shower and a glazed side screen. Further features include a pedestal wash hand basin with a wall-mounted vanity unit above, a close-coupled w.c., shaving point and a chrome heated towel rail. The room is finished with grey tiled flooring and coordinating splashback tiling, which extends around the bath and shower areas for a cohesive, contemporary look.
Green and serene…
The rear garden begins with a paved patio area, creating a sheltered space ideal for al fresco dining, bordered by a low brick wall. Beyond, a well-maintained lawn is framed by mature shrubs and established planting, with timber fencing providing defined boundaries and privacy.
A flagged pathway leads up the garden to a raised decking area at the rear, perfectly positioned for enjoying the sun. To the side, there is an additional patio area with a Yardmaster storage shed, along with a tandem garage divided into two practical storage spaces, both benefitting from power and lighting and accessed via double doors to the front driveway. A side gate provides convenient access between the garden and the front of the property.
Out and about…
Ideally positioned in the sought-after village of Parbold, this home enjoys a superb location with a wealth of local amenities close at hand. Parbold is a thriving community with a well-regarded village centre offering independent shops, a pharmacy, café, pubs and restaurants, as well as a library and doctors’ surgery. The area also benefits from excellent schooling options nearby, including Parbold Douglas Church of England Academy and Our Lady and All Saints Roman Catholic Primary School, both rated Outstanding by Ofsted, alongside other highly regarded primary and secondary schools within easy reach.
Commuters are well served too, with Parbold railway station around 1½ km away providing regular services to surrounding towns and cities, while excellent road and motorway links make commuting to the wider Northwest easy.
For leisure and lifestyle, the surrounding countryside and canal towpaths offer scenic walks and cycling routes, making this a wonderful setting for everyday living and weekend exploration alike.
Viewing is strictly by appointment through Maria B Evans Estate Agents
We are reliably informed that the Tenure of the property is Freehold
The Local Authority is West Lancashire Borough Council
The EPC rating is TBC
The Council Tax Band is D
The property is served by mains drainage
Please note:
Room measurements given in these property details are approximate and are supplied as a guide only.
All land measurements are supplied by the Vendor and should be verified by the buyer's solicitor. We
would advise that all services, appliances and heating facilities be confirmed in working order by an
appropriately registered service company or surveyor on behalf of the buyer as Maria B. Evans Estate
Agency cannot be held responsible for any faults found. No responsibility can be accepted for any
expenses incurred by prospective purchasers.
Sales Office: 34 Town Road, Croston, PR26 9RB T: 01772 737888 Rentals T: 01257 462095
W: www.mariabevans.co.uk E: This email address is being protected from spambots. You need JavaScript enabled to view it. This email address is being protected from spambots. You need JavaScript enabled to view it.
Company No 8160611 Registered Office: 5a The Common, Parbold, Lancs WN8 7HA
Please complete the form below to request a viewing for this property. We will review your request and respond to you as soon as possible. Please add any additional notes or comments that we will need to know about your request.
| Name | Location | Type | Distance |
|---|---|---|---|
Sales: 01704 892001
sales@mariabevans.co.uk
rentals@mariabevans.co.uk