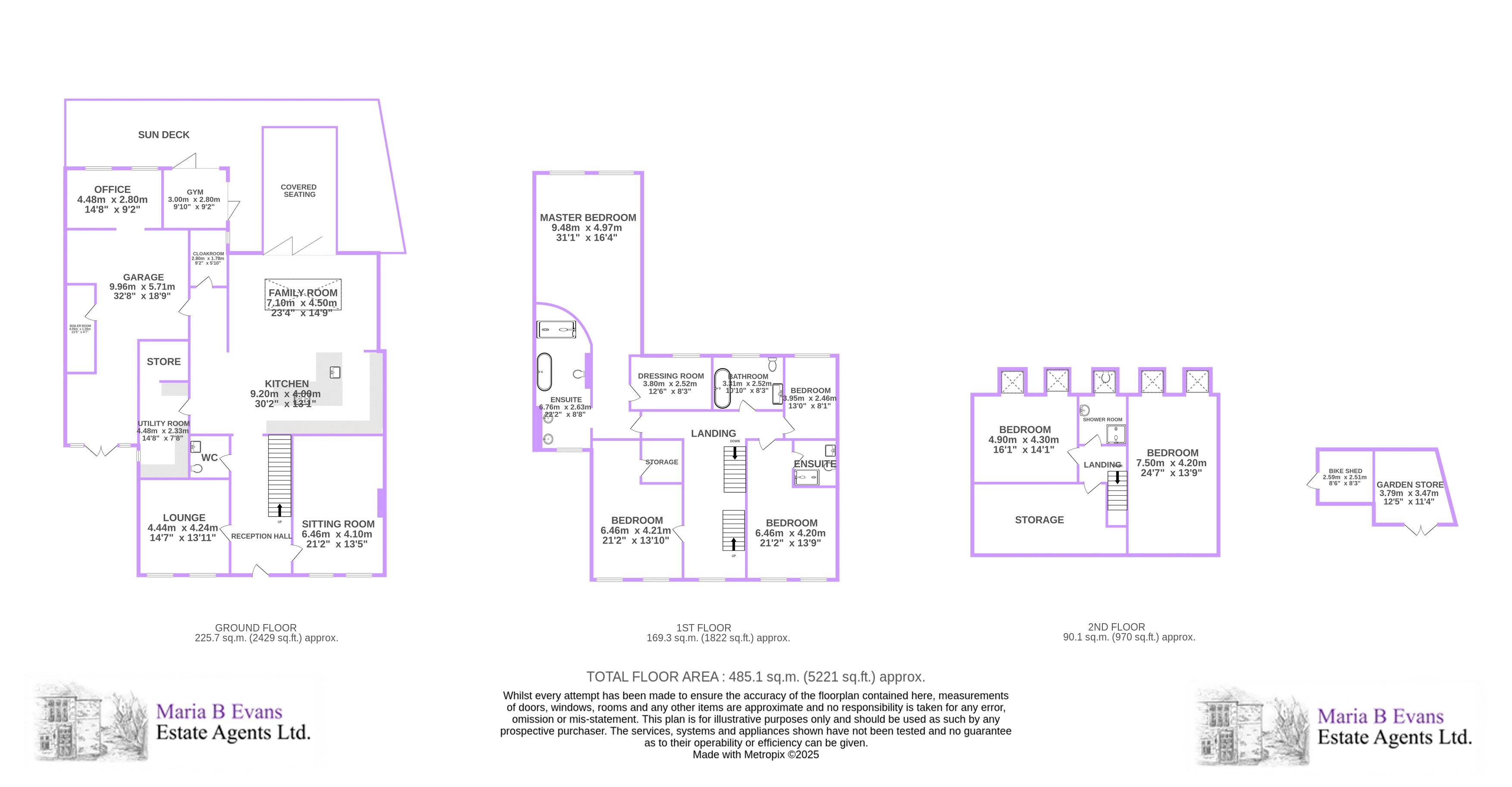
Elegantly presented and built only 20 years ago, this stunning Georgian-style residence presents a beautiful blend of classic character (featuring cornice detailing and sash windows) and contemporary interiors finished with superb specifications such as underfloor heating, the Clipsal C-bus control system and Sonos sound systems.
Boasting two front reception rooms, a spectacular open-plan kitchen, luxurious principal suite, six further bedrooms- some with en suites- and a former garage transformed into a flexible workspace, the property caters perfectly to modern family life. Outside, the private walled garden offers a true entertainer’s dream with a porcelain tiled patio featuring a raised decking area complete with a contemporary glass roof above and marble effect media wall. Ideally located close to local amenities, schools and superb connectivity via motorway links, this is a home in which no detail has been overlooked or missed.
A lasting first impression…
The Georgian-style frontage makes a striking first impression with its classic architectural design that emits a beautifully symmetrical look and portrays the character of this contemporary home from the outset. Set back from the road behind a brick wall with iron railings and matching gates, the property opens onto a block-paved driveway with ample parking.
The elegant entrance hallway provides a perfect greeting into the property with high ceilings and a drop pendant light immediately creating a sense of grandeur. An engineered oak wood flooring flows seamlessly throughout and into the main living areas whilst a staircase to the side gracefully ascends to the first floor.
Opulent retreats…
Twin snug rooms unfold to either side of the entrance hallway. To the right, this snug room is generously sized with fitted wall-mounted cabinetry finished in a grey wood-effect and features integrated lighting to create a warm, atmospheric feel. Cornice detailing and two sash windows to the front introduce a sense of timeless character to the modern space.
Opposite, the second snug mirrors the two traditional sash windows to the front and has a media wall with wall- mounted cabinets completed in a gloss finish surrounding the television point.
Continuing from here, the ground floor w.c. is finished with grey tile flooring and a complementary split-face stone to splash areas. The suite includes a back-to-wall w.c., wash hand basin with illuminated mirror above and a heated towel rail.
Open-plan living at its finest…
Outlining the epitome of luxury, the open-plan living-dining-kitchen space opens up to the rear of the property. The kitchen acts as an outstanding highlight, beautifully designed with a textured concrete-effect finish upon the full-height cabinetry and striking central island which is topped with marble-effect counters. These feature subtle integrated lighting that shifts the daytime brightness to a soft, inviting glow after dark. The island provides generous workspace, pop-up sockets, breakfast bar seating and also incorporates a Franke sink with extendable tap and dishwasher below. A comprehensive suite of KitchenAid integrated appliances enhances the space. Across one wall there is an oven and grill, microwave, steam oven with warming drawer beneath and coffee machine, whilst to the other wall, there are dual refrigerators flanking a wine chiller and three freezer drawers beneath. A feature wine-rack wall with spotlighting completes this impressive culinary setting.
The dining area flows seamlessly from the kitchen, defined by a feature wall with integrated lighting and a drop pendant light.
Across the rear, bi-folding doors offer serene garden views, while a lantern roof light brings additional natural illumination into the living space. Recessed downlights enhance the atmosphere of the living area, which is complete with a media wall housing a 65 inch television space and a having a wall-mounted unit below.
The practical stuff…
The kitchen- complementary utility room features a blend of concrete-effect and white gloss units. Offering both practicality and style, this convenient room includes a granite Franke one-and-a-half sink unit with etched drainer, venting for a tumble dryer and two spaces with plumbing for an automatic washing machine, as well as extensive storage. Finished with a split-face stone splashback and grey tiled flooring, this space continues into a cloakroom area, fitted with hooks and shelving for shoes.
To the rear of the property, a further cloakroom adds additional convenience, with more coat hooks and fitted shoe storage.
A room is a room until…
It is given purpose. Formerly a garage, this integrated area has been thoughtfully transformed into a highly functional space and can be accessed from the front driveway, separate from the main entrance to the house itself. Generously sized, it is warmed by multiple vertical column radiators, has recess downlights and integrated Sonos speakers wired to the ceiling and access to the boiler cupboard. Steps lead up to a further area with sash windows, oak flooring and bi-folding doors to the rear garden. Exceptional versatile, this impressive space can be adapted to a multitude of purposes. For example, it could be restored to its original form as a circa 619 sq.ft. garage or transformed into a dedicated workspace offering the ideal home/work balance and allowing for your business to thrive just steps away from the comfort of your own home. Equally, it lends itself as a studio, showroom or even an annexe for guests or family.
And so, to bed…
Ascending to the first floor, the landing is softly lit with wall lights and enhanced by a front-facing window.
Seek sanctuary in the impressive principal suite which is initially laid with oak flooring leading into the en suite. Designed with a spa-inspired four-piece suite, this includes twin sink bowls sat atop of a vanity cabinet with a mirror and spotlights above, while a standalone bathtub rests beside an illuminated alcove for toiletries. A back-to-wall w.c. precedes a raised wet-room style shower area, fully tiled with grey concrete-effect tiling and sheltered by a glazed panel. A striking split-faced stone backdrop completes this serene retreat.
The main bedroom suite extends beautifully, with a sweeping curved wall to one side revealing the immense bedspace whilst elegant wall-mounted cabinetry runs opposite with a television point above. Two sash windows to the rear of the property sit above a traditional style radiator and plush carpeting underfoot works to add the final touch of warmth and comfort.
A superb walk-in wardrobe completes this luxurious set up and is completed with fitted cabinets across two walls with a wall-mounted vanity desk opposite.
The second bedroom is another generous room with a sash window to the front and contemporary wall mounted units incorporating a vanity desk with mirror above. A television point faces the bedspace, whilst fitted double wardrobes exist to the side. This room also benefits from a three-piece en suite with luxury finishes, featuring a walk-in shower with monsoon head fully tiled in grey concrete-effect, a vanity wash hand basin with illuminated mirror above and back-to-wall w.c.
The third bedroom on this floor is a wonderfully spacious and bright room with two sash windows to the front, a traditional-style radiator and television point across from the bedspace. A door leads into a walk-in cupboard, ideal for conversion into a walk-in wardrobe or for additional storage.
Bedroom four is a single sized room with a sash window to the rear, radiator and pendant light. Currently used as a study, it is fitted with a wall mounted desk with storage above and below and finished in a gloss.
This floor is completed with a contemporary three-piece bathroom. This comprises of a vanity wash hand basin with integrated towel rail and illuminated mirror above and a back-to-wall w.c. with a stone effect tile around. Opposite, a marble-effect feature wall provides the backdrop to a standalone bathtub and has soft, integrated lighting to add depth and atmosphere to the space whilst a dark oak lines the floor.
Rising above it all…
The second-floor benefits from three well-proportioned bedrooms and a stylish three-piece shower room.
All three of the bedrooms are generously proportioned rooms, two with Velux windows to the rear, oak flooring and recess downlights to the ceiling.
The third is currently used as an expansive storage space but is ideal as another study space or even a cosy cinema room, equipped with recess downlights and a radiator.
Serving these rooms is another stunning suite. With grey tiling to the walls to dado, the three-piece suite comprises of a walk-in shower with additional hand shower and glazed screen, vanity wash hand basin with illuminated mirror over and a back-to-wall w.c. This is finalised with a heated towel rail and Velux window to the rear.
The walled garden…
A truly enchanting outdoor retreat, this quiet, fully enclosed garden feels wonderfully private with a high, Grade II listed wall to the right and peaceful woodland backdrop beyond creating a serene, secluded setting. An entertainers dream, the space features a porcelain-tiled patio leading to a central, raised decked seating area, sheltered by a glass roof and having a marble-effect tiled feature wall with an integrated 75 inch television point. Well-established Olive trees flank either side, whilst the garden continues into an expanse of astroturf lawn leading to a partially timber, partially stone outhouse. This has been thoughtfully divided to provide both storage and a cosy seating area, complete with power and lighting.
Round and about…
Well positioned for everyday living, this home sits minutes away from daily essentials. Walks around the charming Worden Park are practically on your doorstep, along with a choice of supermarkets, shops and eateries. For those seeking connectivity, there is access to the M6, M65 and M61 making travelling and commuting effortless. Furthermore, Runshaw College and a selection of primary and secondary schools are just a stone’s throw away, cancelling out the stress of lengthy school runs. Both family-friendly and lifestyle focused, this home presents luxury within the convenience of everyday life.
Viewing is strictly by appointment through Maria B Evans Estate Agents
We are reliably informed that the Tenure of the property is Freehold
The Local Authority is South Ribble Borough Council
The EPC rating is C
The Council Tax Band is G
The property is served by mains drainage
Please note:
Room measurements given in these property details are approximate and are supplied as a guide only.
All land measurements are supplied by the Vendor and should be verified by the buyer's solicitor. We
would advise that all services, appliances and heating facilities be confirmed in working order by an
appropriately registered service company or surveyor on behalf of the buyer as Maria B. Evans Estate
Agency cannot be held responsible for any faults found. No responsibility can be accepted for any
expenses incurred by prospective purchasers.
Sales Office: 34 Town Road, Croston, PR26 9RB T: 01772 737888 Rentals T: 01257 462095
W: www.mariabevans.co.uk E: This email address is being protected from spambots. You need JavaScript enabled to view it. This email address is being protected from spambots. You need JavaScript enabled to view it.
Company No 8160611 Registered Office: 5a The Common, Parbold, Lancs WN8 7HA
Please complete the form below to request a viewing for this property. We will review your request and respond to you as soon as possible. Please add any additional notes or comments that we will need to know about your request.
| Name | Location | Type | Distance |
|---|---|---|---|
Sales: 01704 892001
sales@mariabevans.co.uk
rentals@mariabevans.co.uk