3
1
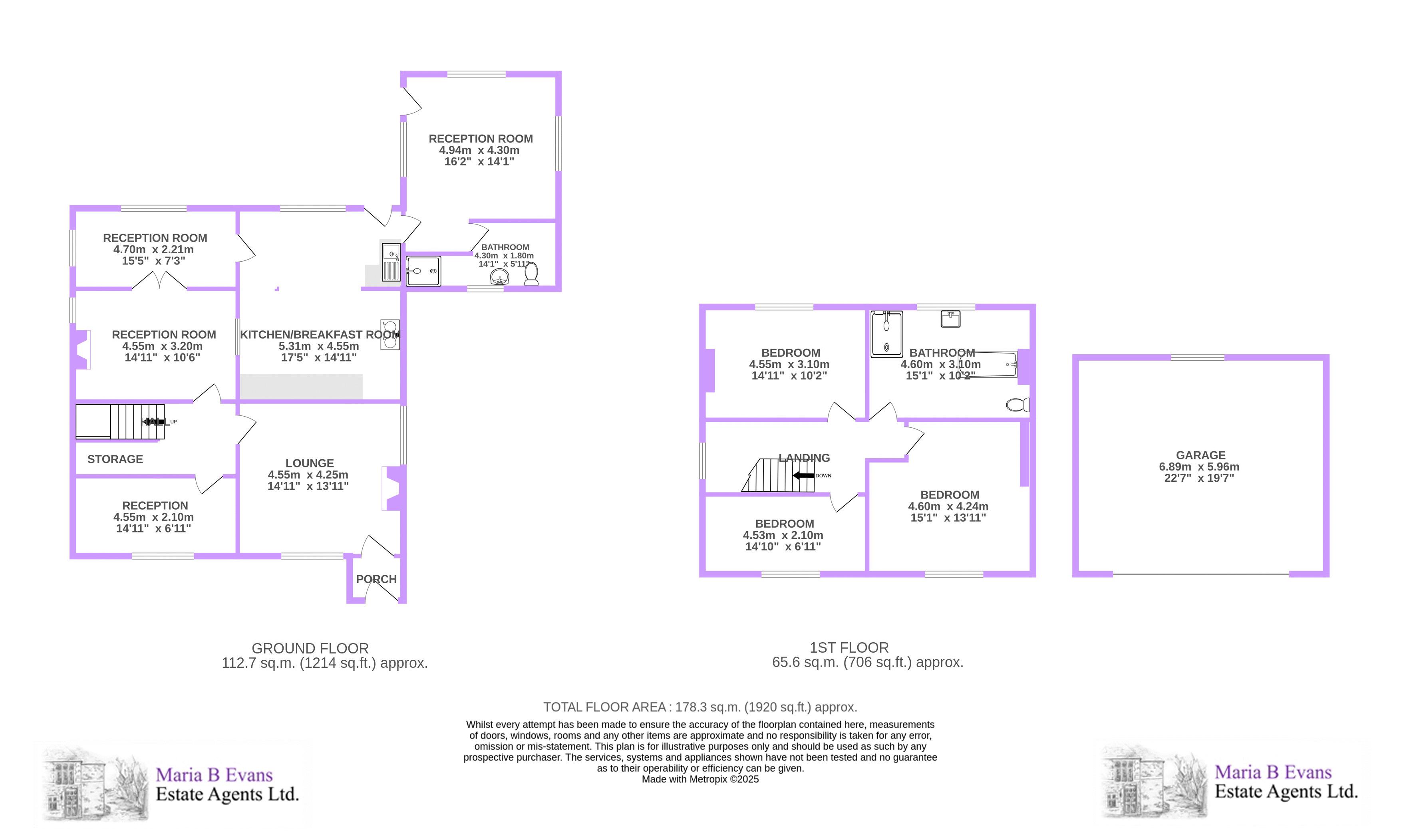
3 Best approached from Drinkhouse Road in Croston, Finney House Farm is a detached, period property dating back to around the early-mid 1700’s. Offering considerable scope for improvement, it presents a valuable opportunity for those looking to create a home tailored to their own vision in a high-regarded location. The ground floor includes an entrance vestibule, two reception rooms, dining room adjacent to the spacious kitchen and generous utility room, as well as a ground floor shower room and a flexible additional room with potential for a study or fourth bedroom. Upstairs offers three bedrooms and a family bathroom whilst, externally, the property benefits from a beautiful rear garden with open aspect views and ample parking.
Welcome in…
Finney House Farm comes into view behind a set of iron gates which open to reveal a Tarmacadam driveway running alongside the property and through to the rear. A latched side gate sits beneath the branches of a crab-apple tree and opens into the front garden. Mainly laid to lawn, the garden extends around to the side of the house and is bordered by mature trees, providing privacy.
Entered via a stone vestibule, a further latched door reveals the cosy front reception room, warmed by a multifuel burner which is set upon a slate hearth with a stone mantle above and forms the rooms focal point. This space enjoys natural light from windows to the front and side and is further warmed by a radiator.
Continuing into the home, the staircase rises to the first floor with useful storage underneath. To the left, a versatile room would be suitable as a ground floor bedroom, study or further sitting room with a window to the front, radiator and exposed beams overhead.
Living spaces full of potential…
To the right of the hallway is a second living room with a multifuel burner set within a stone inset. A side window, exposed beams and a pendant light contribute to the warm character of the room, whilst double doors open into the next space.
This adjoining room lends itself well as a dining area, with windows across the rear fitted with secondary glazing and additional light streaming in from a window to the side and pendant light above.
From here, a step down leads into the spacious kitchen area, fitted with tiled flooring and a comprehensive set of wall and base units. Appliances include an oven and grill, electric hob and space for a refrigerator, along with an inset area to surround the Aga. Plumbing for an automatic washing machine and a stainless-steel sink unit sit neatly to one corner, creating a natural utility space. Windows across the rear offer a pleasant outlook over the garden whilst a generous utility room lies beyond. This is fitted with oak base units and, being a triple aspect room, also enjoys views of the garden. A spacious area, this would make ideal use as a boot room.
Adjacent to this is a three-piece ground floor shower room comprising of an electric walk-in shower enclosed by wet wall panelling, a pedestal wash hand basin and close coupled w.c., with tiling throughout and a window to the side.
And so, to bed…
Staircase ascends to the first floor, where a window brings in natural light and a spacious landing gives way to all three bedrooms and the family bathroom.
The master bedroom is a well-proportioned room with a front-facing window and exposed beams continuing the character from the ground floor.
The second bedroom is another good-sized room overlooking the rear, whilst the third bedroom comfortably accommodates a double bed and benefits from a window to the front.
The bathroom is fitted with a four-piece suite including a central panel bathtub, an electric accessibility shower cubicle, a pedestal wash hand basin and low-flush w.c. An airing cupboard and a rear-facing window complete the space.
The wildlife sanctuary…
The rear garden is a true standout feature of this home. Peaceful and rich in nature, it offers a charming place to spend an afternoon in the fresh air surrounded by passing wildlife. The garden begins as an extension of the driveway, leading to the detached double garage which is equipped with up-and-over doors and light. Beyond this, the garden is laid to lawn and interspersed with well-established trees and shrubs, including different conifer varieties, that naturally encourage wildlife into the space. A pond features adds further interest, in addition to a water tap providing useful convenience for garden care.
Viewing is strictly by appointment through Maria B Evans Estate Agents
We are reliably informed that the Tenure of the property is Freehold
The Local Authority is Chorley Borough Council
The EPC rating is F
The Council Tax Band is E
The property is served by septic tank
Please note:
Room measurements given in these property details are approximate and are supplied as a guide only.
All land measurements are supplied by the Vendor and should be verified by the buyer's solicitor. We
would advise that all services, appliances and heating facilities be confirmed in working order by an
appropriately registered service company or surveyor on behalf of the buyer as Maria B. Evans Estate
Agency cannot be held responsible for any faults found. No responsibility can be accepted for any
expenses incurred by prospective purchasers.
Sales Office: 34 Town Road, Croston, PR26 9RB T: 01772 737888 Rentals T: 01257 462095
W: www.mariabevans.co.uk E: This email address is being protected from spambots. You need JavaScript enabled to view it. This email address is being protected from spambots. You need JavaScript enabled to view it.
Company No 8160611 Registered Office: 5a The Common, Parbold, Lancs WN8 7HA
Please complete the form below to request a viewing for this property. We will review your request and respond to you as soon as possible. Please add any additional notes or comments that we will need to know about your request.
| Name | Location | Type | Distance |
|---|---|---|---|
Sales: 01704 892001
sales@mariabevans.co.uk
rentals@mariabevans.co.uk