3
2
2
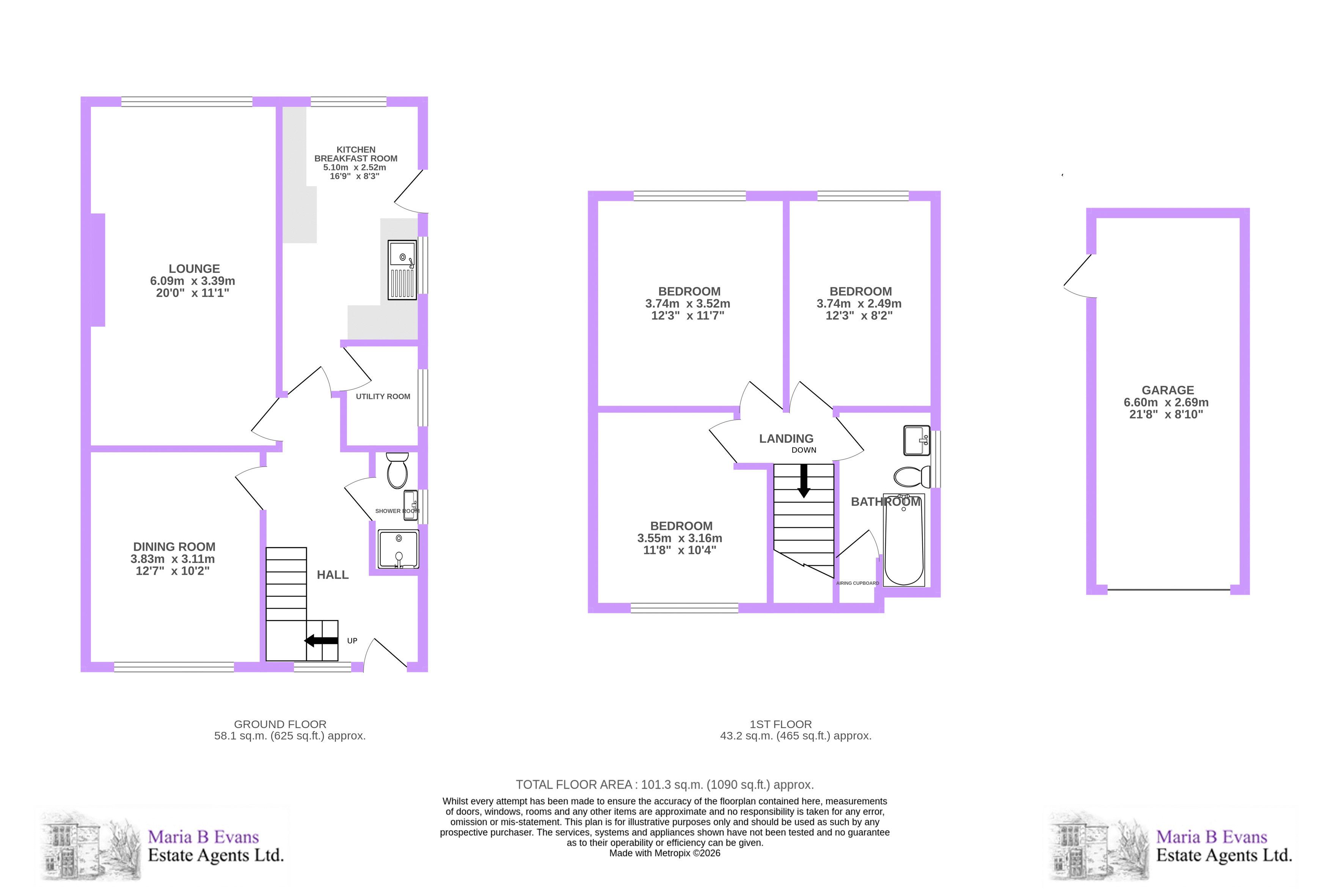
This delightful dormer-style bungalow offers three double bedrooms served by a contemporary family bathroom to the first floor and a breakfast kitchen, utility formal dining room, reception room and a three-piece shower room to the ground floor. Outside, the property benefits from well-maintained gardens to both the front and rear, with the rear garden laid to a combination of lawn and paved areas, alongside a detached, single garage.
Home sweet home…
The welcoming entrance hallway is accessed via the front UPVC door and is naturally brightened by a front-facing picture window, with a pendant light providing additional illumination.
From the hallway, a convenient shower room is fitted with a three-piece suite comprising of a back-to-wall w.c., wall mounted wash hand basin and a shower enclosed by glazed bi-folding doors. This is fitted atop of neutral wet wall panels and finished with an opaque window to the side, chrome heated towel rail and wall mounted vanity cabinet.
Where living happens…
To the left of the hallway, the current dining room is a spacious area enjoying a front-facing bay window and central pendant light.
The reception comprises yet another spacious and bright room with sliding patio doors allowing an abundance of natural light into the space and also offering a peaceful view of the rear garden. The room is finsihed with a televsion point to the corner, a central electric fire with stone surround, hearth and mantle and two pendant lights.
At the end of the hallway, the property opens up to the breakfast kitchen and utility. The kitchen is a dual aspect space with windows to the front and side and a convenient external door providing access to the side of the property. This is fitted with cream wall and base units, topped with a wooden countertop and having a white tiled splashback in between. The units are supplied with an array of integrated appliances including a refrigerator, AEG double oven and grill with electric hob, a dishwasher and a granite sink unit with etched drainer to the left. A television point is positioned to the side, while recessed downlighting provides illumination from above. The remainder of the space is arranged as a dining area, with laminate wood-effect flooring flowing throughout.
Complementing the kitchen, the utility room is fitted with matching units and offers plumbing for an automatic washing machine, an integrated freezer, and a stainless-steel sink with an etched drainer together with additional storage.
Soak and sleep…
Continuing to the first floor, the landing leads to three well-proportioned double bedrooms and the family bathroom.
The master bedroom provides a calm and restful retreat, featuring ample fitted storage with wardrobes neatly positioned into the corner extending into a vanity area opposite the bed space. The room is finished with a rear-facing window and a pendant light.
Bedroom two is another generous double room, enjoying a front-facing window and recessed downlighting, whilst bedroom three is fitted with a double bed to one side, with two double wardrobes and vanity unit on the other, a pendant light and a rear-facing window.
The family bathroom is fitted with a modern three-piece suite with tiling to splash areas and LVT flooring. The suite comprises a panelled bath with additional hand shower, close coupled w.c. and a vanity wash hand basin. Further features include an airing cupboard with useful storage, an opaque side window and a chrome heated towel rail.
The quiet patch…
The property enjoys charming gardens to both the front and rear. To the front, a generous stretch of lawn is enhanced by established trees and shrubs set behind a low stone wall and creating an attractive approach. Adjacent to this, a paved driveway runs along the side of the property, passing through double timber gates to the detached garage, with a brick boundary wall providing separation from the neighbouring property.
The rear garden begins with a paved patio area, ideal for al fresco dining and outdoor entertaining, before opening onto a lawn bordered by meticulously maintained shrubs.
The space is further enclosed by a combination of timber fencing, mature planting and conifers, offering a pleasant sense of shelter and privacy. To the side, the single detached garage features an up-and-over door, while a shed provides additional outdoor storage, a further paved seating area betweent the garage and shed offers a sheltered spot to beyond provides an additional spot to relax and enjoy the garden in the late afternoon sun.
Viewing is strictly by appointment through Maria B Evans Estate Agents
We are reliably informed that the Tenure of the property is Freehold
The Local Authority is Chorley Borough Council
The EPC rating is D
The Council Tax Band is C
The property is served by mains drainage
Please note:
Room measurements given in these property details are approximate and are supplied as a guide only.
All land measurements are supplied by the Vendor and should be verified by the buyer's solicitor. We
would advise that all services, appliances and heating facilities be confirmed in working order by an
appropriately registered service company or surveyor on behalf of the buyer as Maria B. Evans Estate
Agency cannot be held responsible for any faults found. No responsibility can be accepted for any
expenses incurred by prospective purchasers.
Sales Office: 34 Town Road, Croston, PR26 9RB T: 01772 737888 Rentals T: 01257 462095
W: www.mariabevans.co.uk E: This email address is being protected from spambots. You need JavaScript enabled to view it. This email address is being protected from spambots. You need JavaScript enabled to view it.
Company No 8160611 Registered Office: 5a The Common, Parbold, Lancs WN8 7HA
Please complete the form below to request a viewing for this property. We will review your request and respond to you as soon as possible. Please add any additional notes or comments that we will need to know about your request.
| Name | Location | Type | Distance |
|---|---|---|---|
Sales: 01704 892001
sales@mariabevans.co.uk
rentals@mariabevans.co.uk