3
1
2
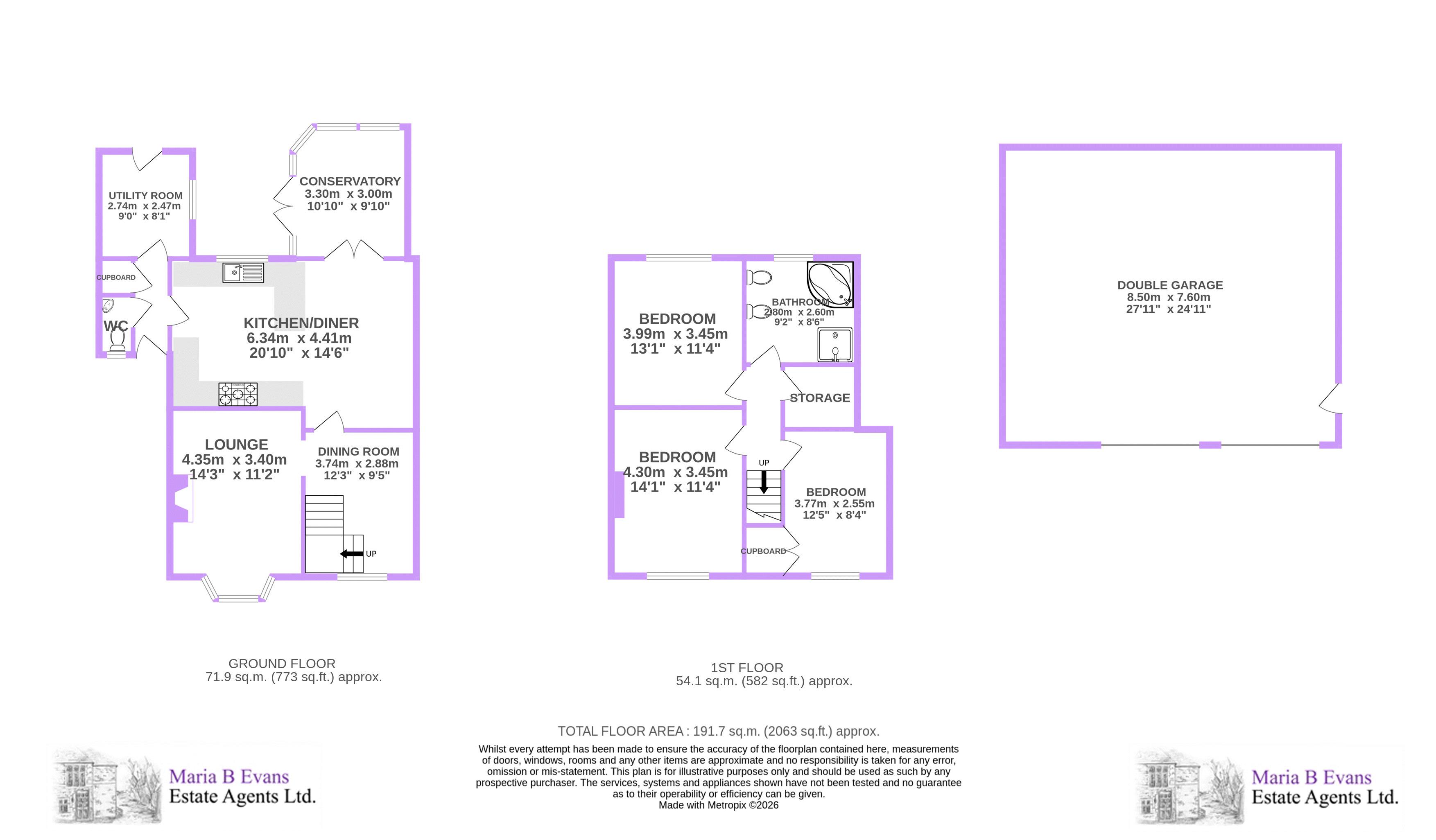
42 New Street is a charming, three-bedroom end terrace home offering spacious living accommodation and a highly convenient village location with easy access to local amenities. Briefly, the layout comprises of two reception rooms to the front of the property, a kitchen-dining area leading through to the conservatory, a kitchen-adjacent utility room and a two-piece ground floor w.c. The gardens are well-landscaped to both the front and rear with a blend of patio and lawned areas that perfectly complement the homes quaint, cottage-style character.
Welcome home…
This property is approached via an extended lawned frontage, setting the property well back from the road, and attractively bordered by hedging. A driveway to the side provides access to parking at the rear as well as to the front entrance.
Stepping inside, the welcoming entrance hallway provides a convenient and practical space, laid with tiled flooring and including a cloakroom for the removal of shoes and coats. This is adjacent to the ground floor w.c. which is finished with tiling to dado, a wall mounted wash hand basin and close coupled w.c.
The utility room lies at the end of the hallway and is fitted with a range of wall and base units with a white tile splashback in between. The units are equipped with plumbing for an automatic washing machine and venting for a tumble dryer as well as offering further storage. This space is finished with a window to the side and composite door to the rear.
Look what’s cooking…
At the centre of the home lies the kitchen, thoughtfully designed for both everyday living and entertaining as it naturally unfolds into the dining space. The kitchen itself comprises of wooden wall and base units topped with white Formica worktops and a mushroom-coloured tiled splashback. These units include a multitude of appliances, beginning with a Neff double oven and grill, a full-length refrigerator, AEG five-point gas hob with hidden extractor fan above and a dishwasher beneath the one-and-a-half stainless-steel sink unit with etched drainer. Integrated lighting below the units casts a soft, warm glow across the workspace which is further illuminated by both a window to the rear and side, recess downlights and a pendant light fixture.
The dining area beyond includes a character beam overhead and a pendant light.
From here, double doors open into the conservatory, offering stunning views of the rear garden. The space is lit by a spotlight and features a set of French patio doors leading out onto the garden.
Comfort and charm…
Further living accommodation is found to the front of the property, where two versatile reception rooms are positioned. The first is warmed by a multifuel burner set within a brick surround and resting upon a stone hearth. A bay window to the front, along with an additional side window, allows natural light to cascade into the space, which is complemented by wall lighting and a central pendant, with a television point completing the space.
The second room offers flexibility as either an additional living space or a home office, featuring a front-facing window and pendant light. From here, the staircase rises to the first floor.
Soak and sleep…
The master bedroom is a good-sized, double room with a pendant light, window to the rear and much space for furniture.
Bedrooms two and three are also double rooms, both with windows overlooking the front of the property and central pendant lights. Bedroom two benefits from wardrobes fitted across one wall with sliding doors, whilst bedroom three has double wardrobes fitted to either side of the bedspace and an integrated storage cupboard.
From the landing, a walk-in cupboard space is lined with shelving and illuminated by a light for convenient and easy-access storage.
The family bathroom holds a four-piece suite comprising of a corner bathtub, cubicle shower with glazed doors, a pedestal wash hand basin and close coupled w.c. The suite is finished with tiling around, a window to the rear and chrome heated towel rail.
Up the garden way…
The rear garden is a delightful space that has been thoughtfully cultivated to create a neat, serene and enjoyable setting. It first begins with a paved terrace, ideal for al fresco dining and is bordered by a timber fence to one side, and a stone wall to the other. Stone steps rise to a decoratively paved feature which is surrounded by lawn areas that extend up the rest of the garden.
A path with stone steps follows this, having shrubs and subtle lighting at the end to provide a subtle glow to the garden as evening falls. At the rear, a substantial parking area offers space for multiple vehicles, with a traditional, farm-style gate permitting convenient access to the adjacent driveway. A double garage with space for a workshop and parking vehicles is accessed through two up-and-over doors or a pedestrian door to the side and benefits from power and lighting.
Set back from the road, this charming home enjoys a peaceful and private setting whilst remaining firmly within the heart of the village, benefitting from the close proximity to everyday amenities. These include local shops, a post office and well-regarded restaurants and pubs, such as The Red Lion and various eateries offered at Cedar Farm. The surrounding countryside provides a wealth of scenic walking routes and quiet lanes, ideal for those who enjoy outdoor pursuits, while highly regarded local primary schools and a choice of secondary schools are within easy reach. This balance of tranquillity and convenience makes Mawdesley an especially desirable place to call home.
Viewing is strictly by appointment through Maria B Evans Estate Agents
We are reliably informed that the Tenure of the property is Freehold
The Local Authority is Chorley Borough Council
The EPC rating is C
The Council Tax Band is B
The property is served by mains drainage
Please note:
Room measurements given in these property details are approximate and are supplied as a guide only.
All land measurements are supplied by the Vendor and should be verified by the buyer's solicitor. We
would advise that all services, appliances and heating facilities be confirmed in working order by an
appropriately registered service company or surveyor on behalf of the buyer as Maria B. Evans Estate
Agency cannot be held responsible for any faults found. No responsibility can be accepted for any
expenses incurred by prospective purchasers.
Sales Office: 34 Town Road, Croston, PR26 9RB T: 01772 737888 Rentals T: 01257 462095
W: www.mariabevans.co.uk E: This email address is being protected from spambots. You need JavaScript enabled to view it. This email address is being protected from spambots. You need JavaScript enabled to view it.
Company No 8160611 Registered Office: 5a The Common, Parbold, Lancs WN8 7HA
Please complete the form below to request a viewing for this property. We will review your request and respond to you as soon as possible. Please add any additional notes or comments that we will need to know about your request.
| Name | Location | Type | Distance |
|---|---|---|---|
Sales: 01704 892001
sales@mariabevans.co.uk
rentals@mariabevans.co.uk