4
3
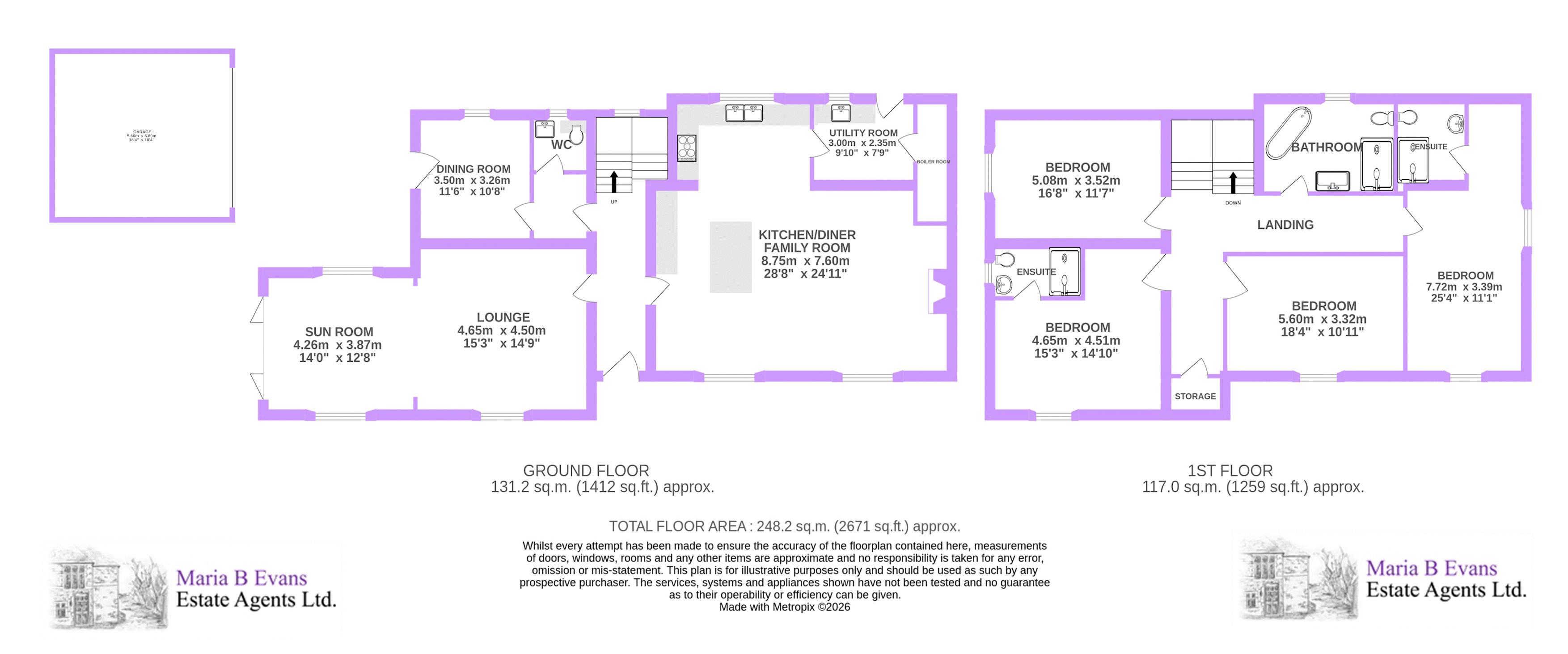
2 This exceptional Grade II listed farmhouse has been sympathetically renovated to celebrate its rich heritage while introducing refined modern comforts, resulting in a home that feels both timeless and effortlessly liveable. Original beams and doors, some over 300 years old, stand as gentle reminders of the property’s past, beautifully balanced with high-quality contemporary finishes throughout. Briefly, the accommodation offers a stunning open-plan kitchen, living and dining space with adjoining boot room, a spacious reception room, home office and ground floor w.c. To the first floor are four generously proportioned bedrooms, two with en suite facilities, together with a beautifully appointed family bathroom. Warmed by underfloor heating throughout and set within an impressive plot extending to approximately 0.64 acres, the property enjoys undulating gardens and far-reaching countryside views.
A timeless entrance…
Welcomed by a recessed entrance rich in period charm, the open porch features a central pendant light and convenient bench seating to either side. Crossing the threshold, an elegant entrance hall unfolds, enhanced by refined wall panelling, stone flooring and recessed downlights.
Rustic charm and modern comforts…
A superb family-orientated space, the impressive open-plan kitchen, living and dining room is a beautifully appointed area laid with original, restored York stone flooring. Beginning with the kitchen, the space is fitted with a bespoke Matthew Marsden shaker-style kitchen finished in a soft grey, complemented by a navy-blue central island, all topped with quartz work surfaces and accented with muted brass handles for a refined finish.
Designed with everyday living in mind, the kitchen offers a full-height larder cupboard flanking bi-folding doors which open to a breakfast-making area with electrical sockets and a television point. The units also include a range of integrated appliances including a full-length refrigerator and freezer, dishwasher, and an electric Rangemaster with hidden extractor fan above. A double porcelain sink with Quooker tap is positioned beneath a rear-facing window. The central island forms a striking focal feature, incorporating a curved walnut breakfast bar, thoughtfully designed to bring people together while cooking and entertaining.
The remainder of the room is rich in character, with exposed beams overhead, two sash windows to the front and a multi-fuel burner set within a brick chimney breast with oak beam over, creating a warm and inviting heart to the home. A further television point completes this exceptional space.
From here, a latched door opens into the utility room, which is fitted with kitchen-complementary cabinetry offering excellent storage. A porcelain sink is positioned beneath a rear-facing window, while an integrated bench with coat hooks above provides a practical space for removing shoes and outerwear. An external door with glazed insets gives access to the rear, and a further door leads through to the plant room.
More to come…
Turning left from the entrance hall, a generously proportioned and beautifully light reception room unfolds. Oak flooring flows seamlessly throughout whilst the room begins with a window to the front and recessed downlighting, with exposed beams adding character and warmth. The space extends into a striking apex section, flanked by windows to either side and featuring double doors with glazed insets and glazed panelling opening onto the Indian stone patio allowing the room to enjoy wonderful, uninterrupted views across the surrounding landscape.
An oak-panelled door from the hallway opens into a well-sized home office, a versatile space suited to a variety of needs. The room is finished with exposed beams, stone flag flooring and recessed downlighting whilst also benefitting from a television point and window and external door to the side. Alternatively, this room would make an ideal children’s playroom and offers direct access to the downstairs cloakroom, which is fitted with a w.c. and wash hand basin.
Sweet dreams…
Rising to the first floor, a spacious landing leads to all four bedrooms and also includes a large storage cupboard, whilst recessed downlighting guides the way towards the principal suite which is thoughtfully positioned within its own private wing.
This impressive bedroom opens into a generously proportioned space, enjoying high ceilings which are adorned with two elegant drop pendant lights. A side-facing window adds further interest, and frames open views across the surrounding fields, while a television point is positioned opposite the bed space.
A small set of steps descends to the dedicated dressing area, a light and inviting space enhanced by a Velux window and recessed downlighting. Beyond lies the stylish en suite, finished with neutral tiling and accented by brushed gold fittings. The suite comprises a walk-in shower with monsoon shower head and additional hand shower, enclosed by glazed sliding doors, a vanity wash hand basin with illuminated mirror above, and a back-to-wall w.c. A Velux window, extractor fan and recessed downlights complete this luxurious space.
The character of the property is beautifully showcased through the retention of original beams and doors, all protected within the listing, creating a seamless blend of heritage charm and contemporary refinement. The first of the characterful, studded doors leads to the second bedroom, which is another generous double room, enjoying far-reaching rural views to the rear, a central pendant light and television point. It is served by a three-piece en suite with brushed gold finishes, including a double walk-in shower with monsoon shower head and additional hand shower, a wash hand basin and a back-to-wall w.c.
Bedroom three benefits from a rear-facing window, feature beams, twin pendant lights and a television point, creating a comfortable and characterful double room.
The final bedroom is another well-proportioned double bedroom, enjoying a side-facing window with beautiful views, along with twin pendant lighting and a television point.
The family bathroom is beautifully appointed with a luxurious four-piece suite with navy blue panelling to one side, complemented by brushed gold finishes and neutral tiling. The suite holds a free-standing bathtub, perfect for relaxing, alongside a double walk-in wet-room style shower featuring a monsoon shower head and additional hand shower. A vanity unit with inset wash hand basin is finished with a grey-veined work surface and positioned beneath an illuminated mirror. Recessed downlighting and an extractor fan complete this elegant space.
A breath of fresh air…
Woodend Farm occupies an enviable plot extending to approximately 0.64 acres, with gardens wrapping around the property. The approach is via a shale driveway providing parking for multiple vehicles, flanked by a lawned area bordered by a neat brick wall to one side and established yew bushes set within shale beds to the other.
From the driveway there is access to the detached double garage, which is set further down the driveway, has power and light and storage available above. To the side of the property, an Indian stone patio has been thoughtfully positioned to make the most of the outstanding outlook, offering an ideal space for al fresco dining and outdoor entertaining while enjoying the impressive surrounding views. The remainder of the garden is predominantly laid to lawn, creating a generous and attractive outdoor setting.
Round and about…
Woodend Farm is set within the desirable rural village of Eccleston, offering an appealing balance of village life and easy access to wider amenities. Local services include primary healthcare at Eccleston Health Centre and reputable schools such as Eccleston St. Mary’s Church of England Primary just under a mile away, with further secondary education options nearby. The village itself provides a selection of independent shops, traditional pubs and eateries, while the nearby towns of Chorley and Leyland offer broader retail, dining and leisure facilities just a short drive away.
Commuters benefit from excellent transport links, with easy access to the M6 and M61 motorways and regular rail services from Chorley and Buckshaw Parkway stations connecting to Preston and Manchester. For outdoor enthusiasts, extensive countryside walks and bridleways surround the area, reflecting the picturesque rural setting that defines the area.
Viewing is strictly by appointment through Maria B Evans Estate Agents
We are reliably informed that the Tenure of the property is Freehold
The Local Authority is Chorley Borough Council
The EPC rating is TBC
The Council Tax Band is E
The property is served by septic tank
Please note:
Room measurements given in these property details are approximate and are supplied as a guide only.
All land measurements are supplied by the Vendor and should be verified by the buyer's solicitor. We
would advise that all services, appliances and heating facilities be confirmed in working order by an
appropriately registered service company or surveyor on behalf of the buyer as Maria B. Evans Estate
Agency cannot be held responsible for any faults found. No responsibility can be accepted for any
expenses incurred by prospective purchasers.
Sales Office: 34 Town Road, Croston, PR26 9RB T: 01772 737888 Rentals T: 01257 462095
W: www.mariabevans.co.uk E: This email address is being protected from spambots. You need JavaScript enabled to view it. This email address is being protected from spambots. You need JavaScript enabled to view it.
Company No 8160611 Registered Office: 5a The Common, Parbold, Lan
Please complete the form below to request a viewing for this property. We will review your request and respond to you as soon as possible. Please add any additional notes or comments that we will need to know about your request.
| Name | Location | Type | Distance |
|---|---|---|---|
Sales: 01704 892001
sales@mariabevans.co.uk
rentals@mariabevans.co.uk