2
2
1
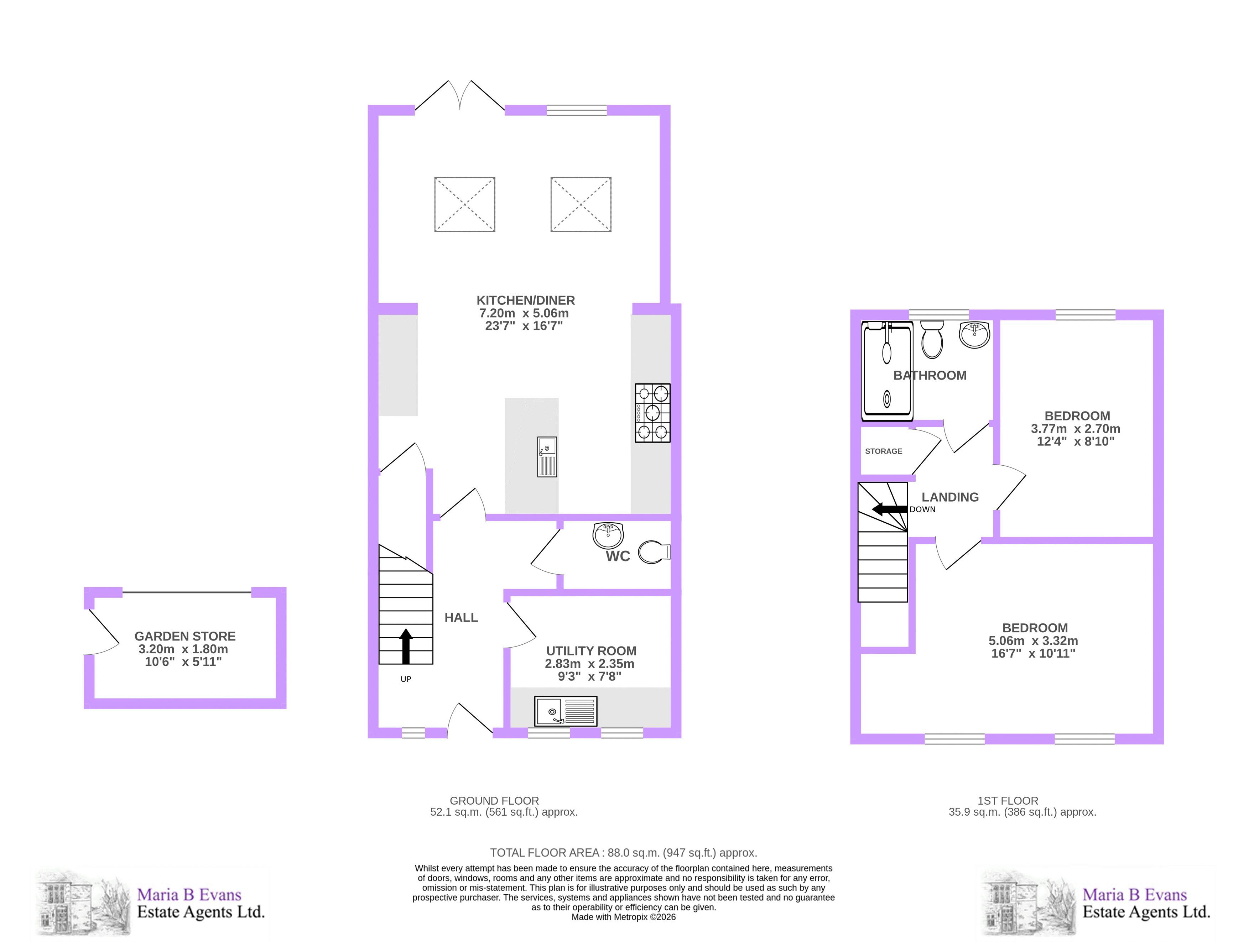
This charming mews property offers delightful, light-filled and spacious accommodation throughout comprising of an open-plan living-dining-kitchen area, separate utility, ground floor w.c. and two good-sized bedrooms serviced by a three-piece shower room. Outside, a charming, terraced garden with brick-built outbuilding equipped with power, light and an electric roller door complete the accommodation. This property is also supplied with off road parking and is situated within the superb village location of Croston.
A warm welcome…
As you step through the front door of 30 Orchard Mill Drive, the unmistakeable, relaxing feeling of arriving at home sweeps over you. A bright, welcoming hallway greets, finished with an engineered scalloped natural oak flooring that flows seamlessly across the entirety of the ground floor. To the left, a white-painted spindle staircase rises elegantly to the first floor, while a front-facing window and a traditional-style vertical column radiator complete the space with both light and character.
The hallway draws you naturally through to the rear of the property, where an impressive open-plan kitchen, living, and dining area unfolds as a connected, free-flowing space. The kitchen is thoughtfully appointed with bespoke, hand-built cabinetry in soft grey tones, including a full-height unit providing clever pantry-style storage, with drawers set beneath and additional full-length cupboards flanking the sides.
Additionally, a range of base units is topped with quartz work surfaces, continuing into upstands and splashbacks. Designed with both practicality and style in mind, the kitchen includes pan drawers, an integrated dishwasher positioned beside a one-and-a-half bowl inset sink unit with etched drainer, an undercounter refrigerator and a dedicated cupboard with power to neatly house smaller appliances. There is also space for a range cooker with an extractor hood above.
The units extend to form a breakfast bar with oak detailing, offering seating for casual dining. This area is illuminated by three pendant light points, alongside recess downlighting that continues throughout the space.
The living and dining area is equally inviting, bathed in natural light from Velux’s, rear window, and patio doors opening onto the garden. Two vertical column radiators and a television point ensure comfort and practicality, creating a space for all occasions.
The practical stuff…
Complementing the main living space is a generous utility room positioned at the front of the property. Fitted with both wall and base units in a stylish olive colour, topped with Formica worktops, this room is as practical as it is attractive. It offers plumbing for an automatic washing machine, space for a tumble dryer, a stainless-steel sink with etched drainer, and space for a refrigerator/freezer. Two front-facing windows flood the room with natural light, enhanced by recess downlighting and a radiator for added comfort.
Adjacent to this, the ground floor w.c. is finished with a contemporary touch, featuring grey panelling to dado height and tiled flooring. It includes a wall-mounted wash hand basin and a back-to-wall w.c., vertical column radiator, while striking ceiling light fittings add a refined and stylish finishing detail.
Soak and sleep…
Ascending to the first floor, the landing leads to two well-proportioned double bedrooms and a contemporary three-piece shower room, with an airing cupboard housing the hot water tank.
The principal bedroom is a spacious and inviting double, featuring two front-facing windows, grey oak laminate flooring, a pendant light fitting, and ample space for freestanding furniture. The room is comfortably warmed by two radiators.
The second bedroom is another double room, complete with fitted wardrobes spanning across one wall. It benefits from laminate flooring, a rear-facing window, recessed downlighting, and a radiator.
Serving both bedrooms is a three-piece shower room, fully tiled in neutral tones. It features an electric temperature-controlled shower with a monsoon head and additional hand shower, a vanity wash hand basin, a close-coupled w.c., and a chrome heated towel rail. The space is finished with a mirrored wall-mounted cabinet with no touch, automatic lighting, a 240v electric supply for charging and an opaque window.
Terraces in bloom…
A private and secluded outdoor space, the low-maintenance terrace is enclosed by attractive timber fencing, creating the perfect setting to relax and enjoy the sun. Fitted hooks provide the option to install overhead shade, offering flexibility for warmer days whilst more practical features include an external water tap and electrical sockets and a timber trellis that neatly screens the dedicated bin storage area.
A brick-built outbuilding, complete with power, lighting, and an electric roller shutter door alongside a white UPVC 5-point security entry door, adds valuable versatility whilst to the rear, a latched timber gate provides convenient access. This property also comes with an allocated parking space for one vehicle to the front, whilst another nine visitor parking spaces are also available.
On your doorstep…
This charming and picturesque village offers a quintessential countryside lifestyle, surrounded by beautiful walking routes along the River Yarrow and open rural landscapes. Well positioned, Croston enjoys excellent connectivity to nearby villages including Rufford and Tarleton, while also being within easy reach of Eccleston and Mawdesley, both known for their rural charm and community feel. For commuters, Croston is retain close connections to Preston, Southport, and Wigan, and has its own train station. This enviable position allows residents to enjoy peaceful village living without compromising on accessibility.
The property itself is within walking distance of local convenience shops and benefits from a vibrant village atmosphere, boasting a wonderful selection of amenities such as well-loved public houses like The Wheatsheaf and The Lord Nelson, alongside popular dining spots including Out Lane Social and the delightful café Thyme on the Yarrow. Adding to the village’s appeal is the exciting prospect of the new Black Rabbit, whilst its proximity to the highly-regarded schools of Trinity & St. Micheal’s Primary and Bishops Rawstrone Secondary School create further appeal.
Croston presents itself as a true all-rounder- perfect for families, professionals, and those seeking an idyllic yet well-connected place to call home.
Viewing is strictly by appointment through Maria B Evans Estate Agents
We are reliably informed that the Tenure of the property is Leasehold
We are reliably informed that the lease length is 999 years
We are reliably informed that the Lease is £100 PA
We are reliably informed that the Lease Charge Renewal is not applicable
We are reliably informed that the Service Charge is £43.50 PCM
The Local Authority is Chorley Borough Council
The EPC rating is C
The Council Tax Band is B
The property is served by mains drainage
Please note:
Room measurements given in these property details are approximate and are supplied as a guide only.
All land measurements are supplied by the Vendor and should be verified by the buyer's solicitor. We
would advise that all services, appliances and heating facilities be confirmed in working order by an
appropriately registered service company or surveyor on behalf of the buyer as Maria B. Evans Estate
Agency cannot be held responsible for any faults found. No responsibility can be accepted for any
expenses incurred by prospective purchasers.
Sales Office: 34 Town Road, Croston, PR26 9RB T: 01772 737888 Rentals T: 01257 462095
W: www.mariabevans.co.uk E: This email address is being protected from spambots. You need JavaScript enabled to view it. This email address is being protected from spambots. You need JavaScript enabled to view it.
Company No 8160611 Registered Office: 5a The Common, Parbold, Lancs WN8 7HA
Please complete the form below to request a viewing for this property. We will review your request and respond to you as soon as possible. Please add any additional notes or comments that we will need to know about your request.
| Name | Location | Type | Distance |
|---|---|---|---|
Sales: 01704 892001
sales@mariabevans.co.uk
rentals@mariabevans.co.uk