5
3
3
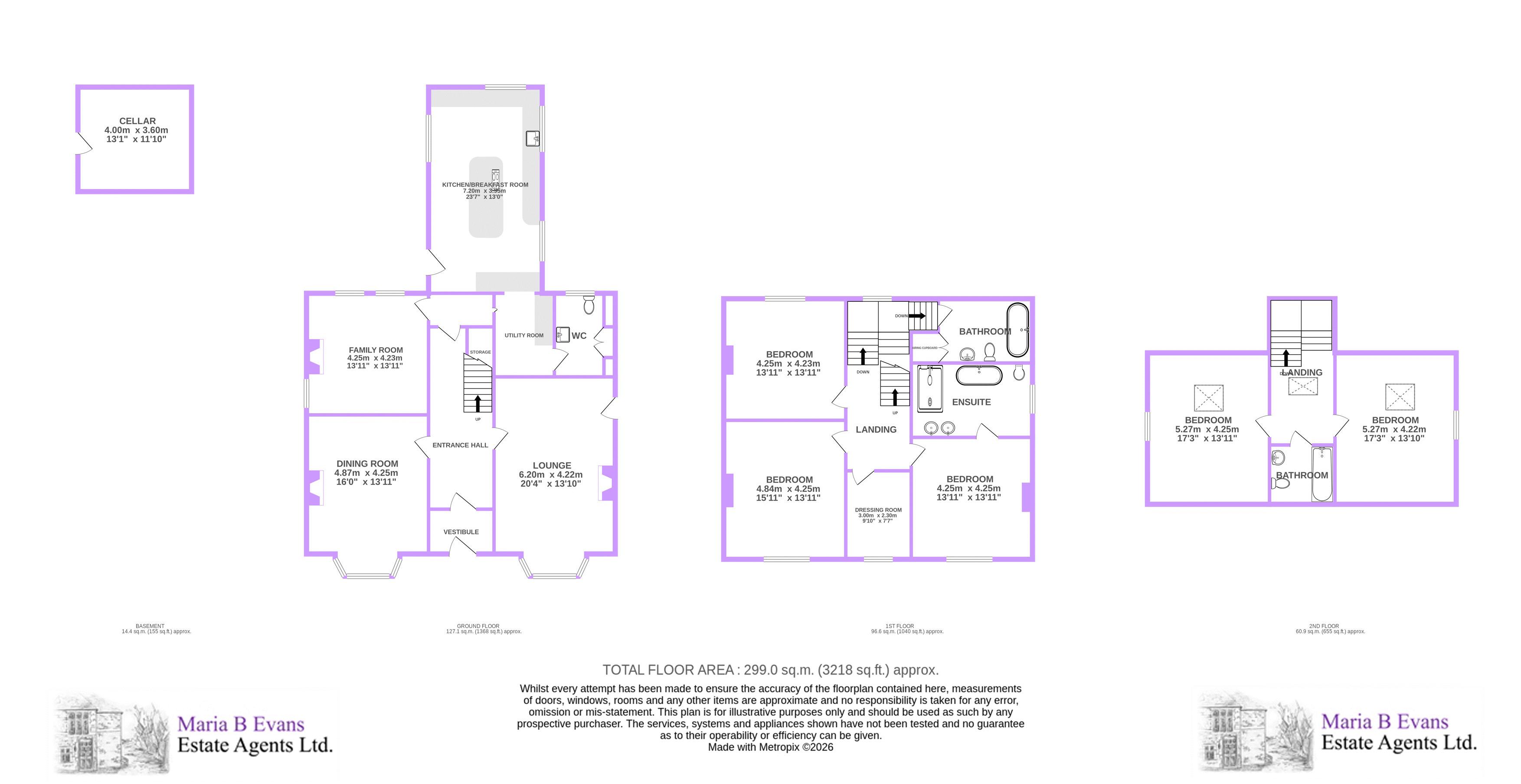
Constructed in 1895 on North Road, Bretherton, Bond Villa is a distinguished Victorian residence notable as the first home in the area to be built using Accrington brick. Over the course of more than a century, ownership has passed carefully from one family to the next, with each chapter contributing to its continued preservation and contemporary evolution. The present owners have lovingly called it home for the last 20 years and thoughtfully enhanced the property to meet contemporary standards while remaining entirely sympathetic to its wealth of original period features. Arranged across three beautifully appointed floors, the accommodation comprises two elegant reception rooms, a formal dining room, and a spacious kitchen complemented by a utility room and ground floor w.c. The first floor offers three bedrooms (the principal bedroom with en suite) alongside a family bathroom and dressing room. The second floor provides two further bedrooms and an additional family bathroom. Yet, for all its careful refinement and considered improvements, the enduring spirit of Bond Villa remains unchanged; at its heart, it is, and always has been, an exceptional family home.
A grand arrival…
Bond Villa comes into view exactly as it would have in the late 1800’s, standing proudly at the head of its driveway behind black iron railings with beech trees lining the front borders. Double iron gates, set between brick pillar posts, open onto the generous Tarmacadam driveway providing ample private parking. An expanse of mature lawn stretches before the house, richly planted with established shrubs and specimen bushes before stone steps rise gracefully to the entrance, reinforcing the home’s sense of grandeur and arrival.
The Victorian-style entrance door is crowned by an opaque glazed fanlight inscribed with the property’s name which pays homage to its original owner, Mr Robert Snaylum, whose business premises were located on Bond Street, Liverpool. Stepping inside, a formal porch welcomes with decorative tiling to dado height and a central pendant light. An internal door with an opaque etched glazed inset then opens into the entrance hall, where the scale and elegance of the home immediately unfolds.
The hall retains a decoratively tiled flooring whilst, overhead, intricate coving frames the ceiling, with a central pendant light set within its detailing and a staircase to the right rises to the first floor. Traditional, white-painted, four-panel doors finished with antique brass doorknobs open into the principal living areas.
Elegant living…
The principal reception room is bathed in natural light, this generous space is enhanced by a striking front-facing bay window and a central pendant set within intricate decorative coving- a refined detail that continues throughout the home. While a television point occupies one corner, the eye is naturally drawn to the magnificent open fireplace, where a Rosso Levanto red marble mantel is paired with a soft beige limestone surround and hearth, creating a beautiful focal point. A glazed door, framed by a black iron gate beyond, opens to steps descending to the side garden, offering a charming connection between house and landscape.
Opposite lies the formal dining room, equally impressive in scale and proportion. There is a bay window to the front elevation while lofty ceilings and a central pendant enhance the sense of grandeur. Mirroring the reception room, it too is centred around a marble open fireplace with limestone surround.
At the far end of the hallway, a door with an opaque glazed inset opens to the second wing of the home.
The family room is an inviting snug perfectly suited to relaxed evenings. A window to the side elevation is complemented by two generous windows overlooking the rear garden whilst a central pendant further illuminates the space and a discreet television point sits to one side underneath a decorative arch. Again, the focal point of this room remains in a charming fireplace where a log-burning stove rests upon a tiled hearth with delicately patterned detailing behind and a white painted mantel above.
Culinary delights…
Beyond, the kitchen is fitted with a beautifully crafted 1909 kitchen which, finished with integrated Neff appliances, marries contemporary functionality with timeless design. Cabinetry in an elegant palette of China Blue and Alabaster is paired with refined marbled almond quartz worktops rising to matching upstands. The central island serves as both a centrepiece and gathering point with its wooden overhang forming a curved breakfast bar — an ideal setting for casual dining, conversation and entertaining. Thoughtfully appointed, the island incorporates an integrated microwave and a five-point induction hob with a downdraft extractor.
The surrounding cabinetry offers extensive storage and seamlessly houses space for an American-style refrigerator and freezer whilst a Neff oven and grill, dishwasher, undercounter refrigerator and Caple wine cooler are all integrated. Positioned beneath a window overlooking the side aspect is a porcelain Belfast sink with etched drainer and, along one wall, a bank of full-height units provides further storage complete with fitted coat hooks.
Set within a delightful triple-aspect room, the kitchen enjoys far-reaching views through expansive windows. Recessed downlights and twin pendants enhance the natural light, while an integrated sound system enriches the ambience. Two traditional-style radiators ensure warmth and comfort, and an external door guides to the rear garden, where the cellar can be accessed via a flight of original stone steps and provides a practical additional storage area, also accommodating the boiler.
A complementary utility room continues the same Alabaster cabinetry and provides plumbing for an automatic washing machine. Oak-effect Karndean flooring flows underfoot from the kitchen and into this space with both pendant and wall lighting to illuminate. Understairs storage can be accessed from here.
A further door leads to the ground floor cloakroom, finished with matching Karndean flooring and a traditional two-piece suite comprising a pedestal wash hand basin and close-coupled w.c. with an etched window and double doors to a substantial storage cupboard.
And so, to bed…
Ascending to the first floor, a graceful spindle staircase crowned with a flowing pine banister leads the way.
The principal bedroom is a supremely elegant retreat with a window to the front and a television point to the side. The room’s authentic Victorian character is beautifully expressed in the Carrara marble fireplace, where soft white stone is threaded with feathery grey veining, offset by rich brown marble column inserts, a cast iron surround and a tiled hearth, making a striking and entirely fitting centrepiece to the suite.
A door with an opaque glazed inset opens to the en suite, a space that introduces contemporary luxury while remaining entirely sympathetic to the era of the property. Wood-effect, Villeroy & Boch tiled flooring warmed by underfloor heating complements Porcelanosa tiled walls, creating a backdrop for the four-piece suite. This comprises a freestanding Ashton & Bentley slipper roll-top bath with telephone-style hand shower while adjacent glazed doors slide open to reveal a generous walk-in Aqualisa shower.
A wall-mounted vanity spans one wall, incorporating twin wash hand basins with wall lights above and subtle integrated illumination beneath. Two recessed alcoves provide additional, softly lit storage for toiletries and a back-to-wall w.c., vertical column radiator, recessed downlights and wiring for an integrated sound system complete this refined and beautifully appointed suite.
The second bedroom is another elegant and well-proportioned room, featuring a front-facing window and a marble feature fireplace with decoratively tiled hearth and cast-iron surround.
Bedroom three enjoys a peaceful outlook over the rear garden and includes a television point and open feature fireplace with a white painted mantel and cast-iron surround.
Completing the accommodation on this floor, the family bathroom is approached via a gentle rise of steps from the landing, adding a subtle sense of separation and privacy. Wood-effect tiled flooring flows underfoot, complemented by tiling to dado and to splash areas. The Imperial suite in Cream Haze features a panelled bath with additional hand shower and glazed screen, a vanity wash hand basin and a close-coupled w.c. The suite is finished with a chrome column heated towel rail, recessed downlights, an etched window and double doors opening to a useful cupboard housing the hot water cylinder.
High and mighty…
Ascending to the second floor, a spacious landing leads to two good-sized bedrooms and an additional three-piece bathroom, creating an ideal arrangement for family or guests.
Both bedrooms are wonderfully bright, each benefitting from side-facing windows framed with apex detailing that captures far-reaching views and forms an attractive architectural feature. Velux rooflights further enhance the sense of light and openness. One of the rooms is thoughtfully arranged with twin sets of fitted double wardrobes positioned either side of the bed space.
Situated between the two bedrooms, the family bathroom is fully tiled and fitted with a panelled bath with shower over and glazed screen to the side, while a vanity unit extends along one wall, incorporating storage, a wash hand basin and a back-to-wall w.c. Glazed inset fanlights borrow natural light from the landing.
Gardens and grounds…
The gardens and grounds of Bond Villa are both beautiful and meticulously maintained, extending to approximately 2.3 acres and providing a remarkable sense of privacy and space. The Tarmacadam driveway running to the side of the property meanders around to the rear to where additional parking is available.
The detached double garage is fitted with electric up-and-over doors, power and lighting and has a water tap and electric car charging point, whilst the second half of the building has been thoughtfully converted to create a versatile annexe space. The climate is easily managed via a mobile-controlled heating system with an integrated air conditioning unit that not only cools during the warmer months but also provides efficient heating when the weather changes. A built-in sound system and projector, along with a raised area to the rear, create a great space for entertaining or, alternatively, space for a home gymnasium. Oak flooring flows throughout the space which is lit by recessed downlights and dual-aspect windows to the front and rear.
The annexe has been equipped with a kitchenette, finished with tiled flooring and fitted with oak wall and base units topped with granite work surfaces. A stainless-steel sink with etched drainer sits beneath an opaque window, and the units also provide space for refrigerator and freezer. A conveniently located w.c. lies adjacent, complete with a pedestal wash hand basin, close-coupled w.c., tiling to splash areas, an opaque window and pendant lighting. A timber shed for further storage is also accessed to the side of the garage.
Equestrian facilities…
Nestled behind a pair of double timber gates, the equestrian facilities are thoughtfully arranged to provide both practicality and ease of access. An L-shaped timber stable block, comprising of three stables, is set upon a concrete base. Immediately beyond lies a 40m x 20m manège securely enclosed by timber post-and-rail fencing, offering an excellent space for schooling and training. To the side and rear of the stables, a generous paddock provides ample grazing, completing what is a well configured and desirable equestrian setup within the grounds of the property.
The orchard…
The grounds also encompass a much-loved area known affectionately by the current owners as “The Orchard”. Laid predominantly to lawn and gently enclosed by post-and-wire fencing, it provides an idyllic and private spot to sit, relax and bask in the sun. Mature beech trees line the frontage and a graceful willow tree is accompanied by established damson, pear and cherry trees offering both seasonal beauty and a peaceful feel to this enchanting corner of the grounds.
A village through time…
A beautiful summation of the village comes from the folklore story that recalls the shrimpers who travelled from Banks to the Wigan and Chorley markets. They used Bretherton as a marker: if they reached the village at daybreak, it meant that they were on time, but arriving after sunrise often meant they were too late to secure a stall at the markets. Therefore, they began to associate Bretherton with the time in which darkness gives way to illumination, landing it with the name ‘The Edge of Light’.
Today, the village offers a thriving community atmosphere and is a regular entrant in the Best Kept Village competition. The village offers a cricket club, sports field with tennis court, bowling green, boules pitch, playground, welcoming cafés and traditional pubs, alongside picturesque rural, woodland and riverside walks. It benefits from a strong selection of schools, including Bretherton Endowed C of E Primary, and enjoys close proximity to the amenities of Croston, Mawdesley, Tarleton, Rufford and Much Hoole. Excellent transport links via the A59 and nearby train stations at Croston, Rufford and Leyland provide convenient access to Liverpool and Preston for the commuter. Bond Villa itself is noted in Geoffrey Coxhead’s ‘Bretherton in Times Past’, written in 1985 with the intention of preserving and celebrating the rich history of the village, where it is described as ‘a very grand house’.
Viewing is strictly by appointment through Maria B Evans Estate Agents
We are reliably informed that the Tenure of the property is Freehold
The Local Authority is Chorley Borough Council
The EPC rating is F
The Council Tax Band is G
The property is served by mains drainage
Please note:
Room measurements given in these property details are approximate and are supplied as a guide only.
All land measurements are supplied by the Vendor and should be verified by the buyer's solicitor. We
would advise that all services, appliances and heating facilities be confirmed in working order by an
appropriately registered service company or surveyor on behalf of the buyer as Maria B. Evans Estate
Agency cannot be held responsible for any faults found. No responsibility can be accepted for any
expenses incurred by prospective purchasers.
Sales Office: 34 Town Road, Croston, PR26 9RB T: 01772 737888 Rentals T: 01257 462095
W: www.mariabevans.co.uk E: This email address is being protected from spambots. You need JavaScript enabled to view it. This email address is being protected from spambots. You need JavaScript enabled to view it.
Company No 8160611 Registered Office: 5a The Common, Parbold, Lancs WN8 7HA
Please complete the form below to request a viewing for this property. We will review your request and respond to you as soon as possible. Please add any additional notes or comments that we will need to know about your request.
| Name | Location | Type | Distance |
|---|---|---|---|
Sales: 01704 892001
sales@mariabevans.co.uk
rentals@mariabevans.co.uk