3
2
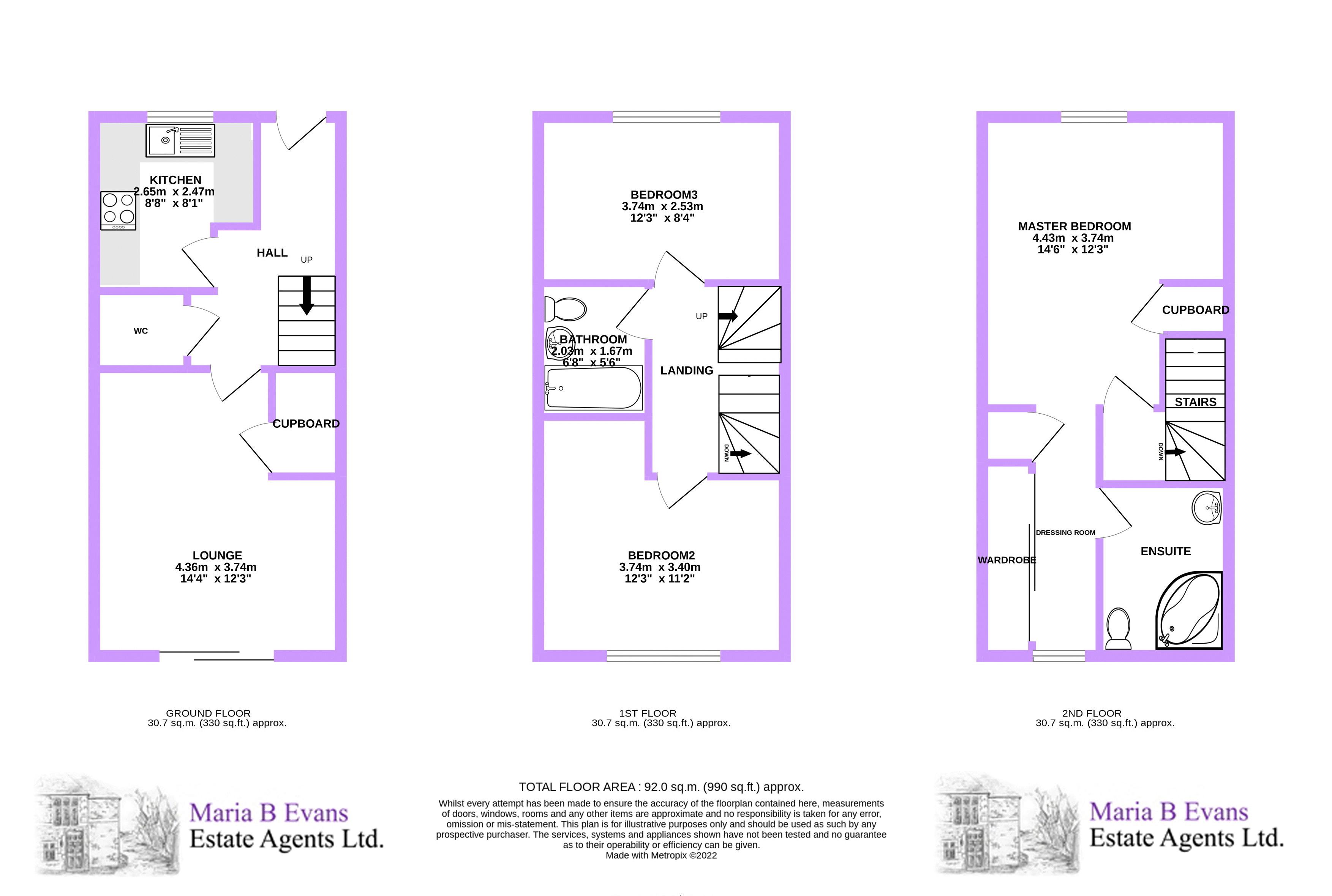
1 This charming town house offers delightful accomodation with a kitchen, reception and w.c. to the ground floor, two bedrooms and a family bathroom to the first, whilst the master suite occupies the whole of the second floor with a dressing area and three-piece en suite. Occupying a village central position, this home offers convenience of nearby amenities and schools as well as a picturesque setting and includes two allocated parking spaces as well as the available visitor parking spaces.
Welcome in…
Accessed via a block-paved driveway with off-road parking for one vehicle (the second parking space available in the communal parking area), the property is entered through a uPVC door with fanlight and inset, opening into the welcoming hallway. This space features laminate flooring, a radiator, and pendant lighting.
Positioned to the right, the kitchen is fitted with a range of cream wall and base units topped with wood-effect counters and having a combination of circular and cupped handles as well as a tiled splashback behind. It is equipped with a white, granite one-and-a-half bowl sink unit with an etched drainer to the side, plumbing for an automatic washing machine, an oven and grill, and space for a refrigerator/freezer. A front-facing window allows for natural light to pour into the space.
At the rear of the property, the reception room is bright and spacious room with glazed patio doors opening onto the rear garden. This inviting space is enhanced by an electric fireplace with a smooth stone surround and wooden mantel, both pendant and wall lighting, and access to the understairs storage.
Completing the ground floor accommodation is the cloakroom, equipped with a close coupled w.c., wall mounted wash hand basin, an extractor fan and tiling to both the floor and splash areas.
Soak and sleep…
Rising to the first floor, the landing gives way to two bedrooms both served by a three-piece family bathroom.
Bedrooms two and three are both well-proportioned doubles, enjoying front and rear aspects respectively. Each room is fitted with a radiator and illuminated by pendant lighting.
The family bathroom is centrally positioned between the two bedrooms and features a white three-piece suite, comprising a panelled bath with shower over and glazed screen, a pedestal wash hand basin, and a close-coupled w.c. The room is completed with a fixed mirror and charging point, with tiling to splashback areas and a decorative tiled floor.
The master suite…
Rising to the second floor, the master bedroom suite occupies the entire level, creating a private retreat. The main bedroom area has a feature arched window to the front, pendant light and television point. Generous in size, the room benefits from high ceilings that enhance the sense of space, as well as a useful storage cupboard.
An archway leads through to a dedicated dressing area, offering space for wardrobes, a rear-facing window, pendant lighting, and airing cupboard. The room is further complemented by a three-piece en suite, comprising a corner bath, pedestal wash hand basin, and close-coupled w.c., with tiling to splash areas, an opaque window, and laminate flooring.
The garden spot…
Benefitting from a south-facing aspect, the rear garden offers a great spot to soak up the sun, initially beginning with a decking area before transitioning into shale with stepping stones leading to the rear gate. The garden is secured with timber fencing around.
Our picks for you…
This charming and picturesque village offers a quintessential countryside lifestyle, surrounded by beautiful walking routes along the River Yarrow and open rural landscapes. Well positioned, Croston enjoys excellent connectivity to nearby villages including Rufford and Tarleton, while also being within easy reach of Eccleston and Mawdesley. For commuters, Croston retains close connections to Preston, Southport, and Wigan, and also has its own train station.
The property itself is within walking distance of local convenience shops and benefits from a vibrant village atmosphere, boasting a wonderful selection of amenities such as well-loved public houses like The Wheatsheaf and The Lord Nelson, alongside popular dining spots including Out Lane Social and the delightful café Thyme on the Yarrow. Adding to the village’s appeal is the exciting prospect of the new Black Rabbit, whilst its proximity to the highly-regarded schools of Trinity & St. Micheal’s Primary and Bishops Rawstrone Secondary School make it an ideal spot for families.
Viewing is strictly by appointment through Maria B Evans Estate Agents
We are reliably informed that the Tenure of the property is Leasehold
We are reliably informed that the lease length is 999 years
We are reliably informed that the lease charge is £100 PA
The Local Authority is Chorley Borough Council
The EPC rating is C
The Council Tax Band is C
The property is served by mains drainage
Please note:
Room measurements given in these property details are approximate and are supplied as a guide only.
All land measurements are supplied by the Vendor and should be verified by the buyer's solicitor. We
would advise that all services, appliances and heating facilities be confirmed in working order by an
appropriately registered service company or surveyor on behalf of the buyer as Maria B. Evans Estate
Agency cannot be held responsible for any faults found. No responsibility can be accepted for any
expenses incurred by prospective purchasers.
Sales Office: 34 Town Road, Croston, PR26 9RB T: 01772 737888 Rentals T: 01257 462095
W E: This email address is being protected from spambots. You need JavaScript enabled to view it. This email address is being protected from spambots. You need JavaScript enabled to view it.
Company No 8160611 Registered Office: 5a The Common, Parbold, Lancs WN8 7HA
Please complete the form below to request a viewing for this property. We will review your request and respond to you as soon as possible. Please add any additional notes or comments that we will need to know about your request.
| Name | Location | Type | Distance |
|---|---|---|---|
Sales: 01704 892001
sales@mariabevans.co.uk
rentals@mariabevans.co.uk