2
2
1
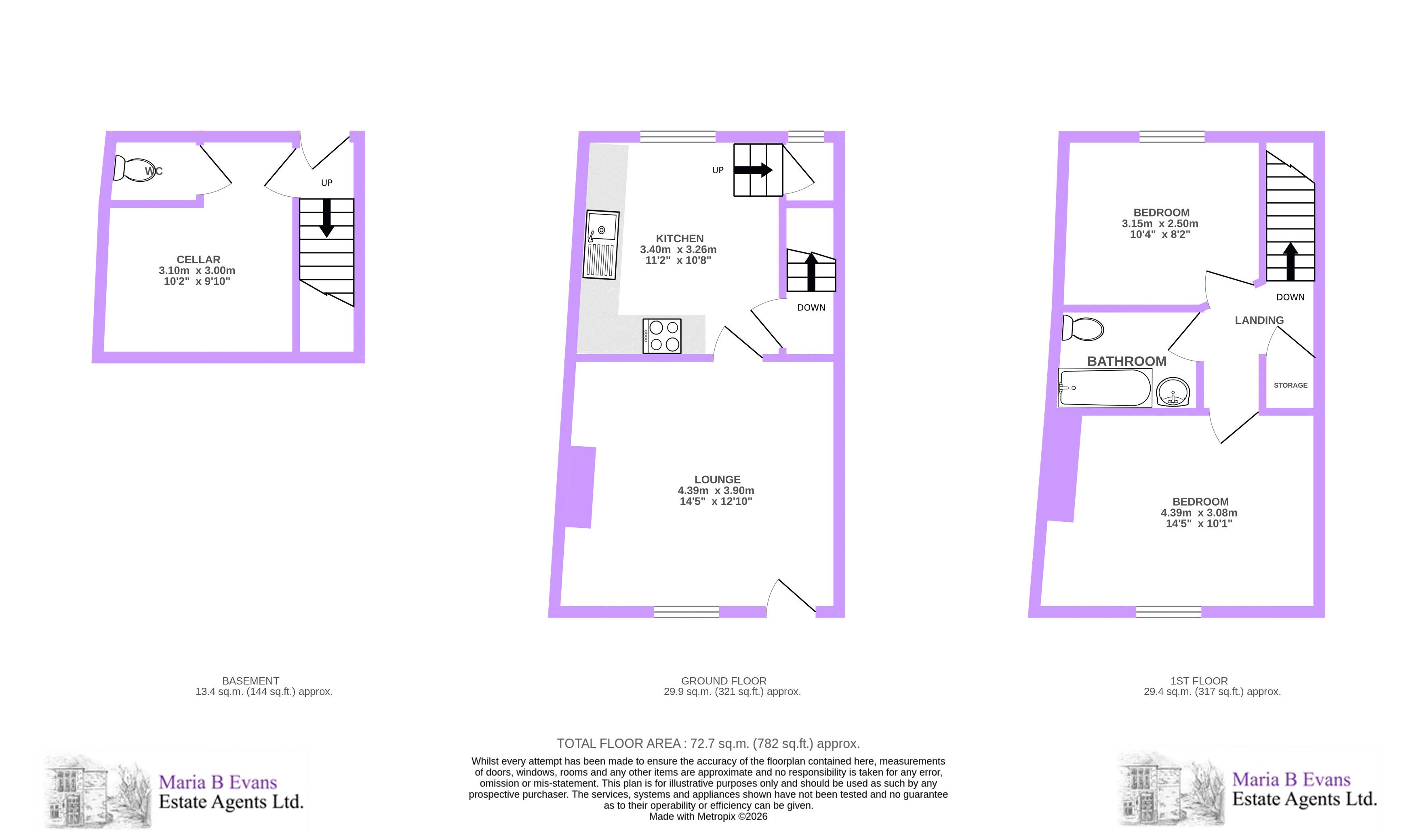
This end terrace property on Moor Road offers characterful accommodation with high ceilings and original stone flag flooring features. The first floor presents a spacious reception and separate kitchen whilst, upstairs, two bedrooms and a family bathroom span across the first floor. To the basement, a convenient storage space with plumbing for utilities is available as well as a w.c. and externally, a courtyard garden provides a spot to sit and relax, with one designated parking space beyond.
Welcome in…
The property is approached through a UPVC door to the front with an opaque, stained glass inset and fanlight above. Once inside, the front reception unfolds as a spacious room, benefitting from high ceilings enhanced by decorative coving, wood-effect, laminate flooring underfoot and a central pendant light. The focal point of the room is the painted brick fireplace, which is complemented by a window to the front of the property and radiator.
A door leads into the kitchen, which is appointed with white wall and base units, topped with black countertops and has a white tile splashback. The units include an integrated oven and grill, induction hob with extractor hood and stainless-steel sink unit with a swan neck tap over. A window to rear and pendant light illuminate the space which is also warmed by a radiator.
Rising above it all…
Continuing to the first floor, the landing gives way to two bedrooms, a family bathroom and also includes an airing cupboard.
The master bedroom is a good-sized double room with a window overlooking the front, pendant light and radiator.
Similarly, bedroom two is another double room, but instead, enjoys a window with rear facing aspects, a radiator and pendant light.
Soak it up…
The family bathroom is fully tiled with neutral tiling to the floor and white to the walls. The suite includes a panel bath with glazed screen and shower over, pedestal wash hand basin and close coupled w.c. A wall mounted vanity cabinet with mirrored frontage, radiator with integrated towel rail, light and extractor fan finish the suite.
On another level…
A latched, timber door opens into a stairway, leading down to the basement. This holds the original stone flag flooring, plumbing for utilities and is warmed by a radiator providing a useful, easily accessed storage space. Adjacent, a latched door opens into a cubicle housing the boiler and a close coupled w.c. From here, a UPVC door opens onto the courtyard garden.
The courtyard…
The rear garden is laid with a low-maintenance patio area scattered with shale, planted beds for added interest whilst a surrounding brick wall and railings providing further privacy. There is a timber storage shed located to the corner and a gate leading through to a shared passageway to the allocated parking. This property has one designated parking space.
On your doorstep…
This charming and picturesque village offers a quintessential countryside lifestyle, surrounded by beautiful walking routes along the River Yarrow and open rural landscapes.
Well positioned, Croston enjoys excellent connectivity to nearby villages including Rufford and Tarleton, while also being within easy reach of Eccleston and Mawdesley, both known for their rural charm and community feel. For commuters, Croston is retain close connections to Preston, Southport, and Wigan, and has its own train station. This enviable position allows residents to enjoy peaceful village living without compromising on accessibility.
The property itself is within walking distance of local convenience shops and benefits from a vibrant village atmosphere, boasting a wonderful selection of amenities such as well-loved public houses like The Wheatsheaf and The Lord Nelson, alongside popular dining spots including Out Lane Social and the delightful café Thyme on the Yarrow. Adding to the village’s appeal is the exciting prospect of the new Black Rabbit, whilst its proximity to the highly-regarded schools of Trinity & St. Micheal’s Primary and Bishops Rawstrone Secondary School create furher appeal.
Croston presents itself as a true all-rounder- perfect for families, professionals, and those seeking an idyllic yet well-connected place to call home.
Viewing is strictly by appointment through Maria B Evans Estate Agents
We are reliably informed that the Tenure of the property is Freehold
The Local Authority is Chorley Borough Council
The EPC rating is D
The Council Tax Band is A
The property is served by mains drainage
Please note:
Room measurements given in these property details are approximate and are supplied as a guide only.
All land measurements are supplied by the Vendor and should be verified by the buyer's solicitor. We
would advise that all services, appliances and heating facilities be confirmed in working order by an
appropriately registered service company or surveyor on behalf of the buyer as Maria B. Evans Estate
Agency cannot be held responsible for any faults found. No responsibility can be accepted for any
expenses incurred by prospective purchasers.
Sales Office: 34 Town Road, Croston, PR26 9RB T: 01772 737888 Rentals T: 01257 462095
W: www.mariabevans.co.uk E: This email address is being protected from spambots. You need JavaScript enabled to view it. This email address is being protected from spambots. You need JavaScript enabled to view it.
Company No 8160611 Registered Office: 5a The Common, Parbold, Lancs WN8 7HA
Please complete the form below to request a viewing for this property. We will review your request and respond to you as soon as possible. Please add any additional notes or comments that we will need to know about your request.
| Name | Location | Type | Distance |
|---|---|---|---|
Sales: 01704 892001
sales@mariabevans.co.uk
rentals@mariabevans.co.uk